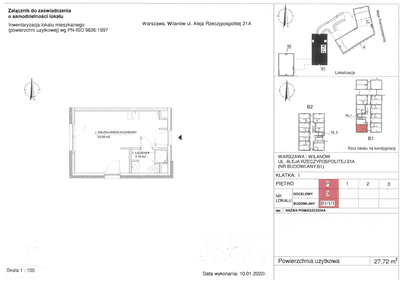
Nowe mieszkanie na sprzedaż 1 pokój Warszawa Wilanów, 27,72 m2, parter - nr 3
Oferta sprzedaży od SIW 2 Sp. z o.o.
Warszawa, Wilanów, Błonia Wilanowskie, Al. Rzeczypospolitej 21 (8,3km od centrum Warszawy)

Główne cechy mieszkania
Ważne informacje
Mieszkanie 1 pokojowe
Dodatkowe informacje
Udogodnienia

Usługi w budynku

Plac zabaw

Winda
Inwestycja
RZ21
mazowieckie, Warszawa, Wilanów, Błonia Wilanowskie
RZ 21 to adres w sercu Miasteczka Wilanów, który łączy funkcję mieszkalną i usługową, oferując wygodę życia na wyciągnięcie ręki oraz stabilny zwrot z inwestycji. Pewna lokalizacja, przemyślany projekt i nowoczesne rozwiązania. To jakość, której szukasz. RZ 21 to adres gdzie pełny dostęp do miejskiej infrastruktury spotyka się z cichym, zielonym otoczeniem. Nie czekaj – skontaktuj się z nami i poznaj możliwości nabycia mieszkań w metrażach od 33 m2. Mieszkania dostępne od ręki. Już dziś. W związku z tym, że lokale objęte niniejszą prezentacją nie powstały w ramach przedsięwzięcia deweloperskiego realizowanego przez Spółkę, a Spółka nie posiada statusu dewelopera w rozumieniu ustawy z dnia 20 maja 2021 r. o ochronie praw nabywcy lokalu mieszkalnego lub domu jednorodzinnego oraz deweloperskim funduszu gwarancyjnym („Ustawa Deweloperska”), do umów zawieranych przez Spółkę w ramach procesu sprzedaży lokali nie stosuje się Ustawy Deweloperskiej, w tym środków ochrony w tej Ustawie przewidzianych.
Dostępne mieszkania w tej inwestycji
| Nazwa | Rzut | Pokoje | Powierzchnia | Piętro | Cena | Status |