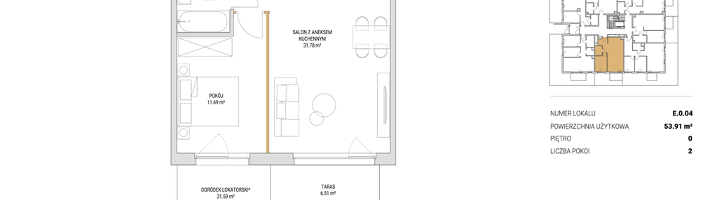
Nowe mieszkanie na sprzedaż 2 pokoje Warszawa Mokotów, 53,91 m2, parter - nr E.0.04
Oferta sprzedaży od SGI Sp. z o.o.
Warszawa, Mokotów, Siekierki, ul. Ananasowa (4,9km od centrum Warszawy)

Główne cechy mieszkania
Ważne informacje
Mieszkanie 2 pokojowe
Dodatkowe informacje
Udogodnienia

Winda

Plac zabaw
Inwestycja
Ananasowa
mazowieckie, Warszawa, Mokotów, Siekierki
Ananasowa to kameralny zespół 3-piętrowych willi miejskich, położony na Dolnym Mokotowie. Osiedle oferuje swoim mieszkańcom nowoczesną estetykę i komfort życia w otoczeniu terenów zielonych. Inwestycja obejmuje 5 budynków, w których łącznie znajdzie się 127 mieszkań o powierzchni od 47 do 121 m2. Mieszkania na parterze będą wyposażone w prywatne ogródki, a pozostałe – w przestronne balkony. W standardzie wszystkich mieszkań znajdą się duże przeszklenia, żaluzje zewnętrzne i przygotowanie do montażu klimatyzacji. Do dyspozycji mieszkańców będą komórki lokatorskie, 128 podziemnych miejsc parkingowych i zewnętrzne stojaki na rowery.
Dostępne mieszkania w tej inwestycji
| Nazwa | Rzut | Pokoje | Powierzchnia | Piętro | Cena | Status |