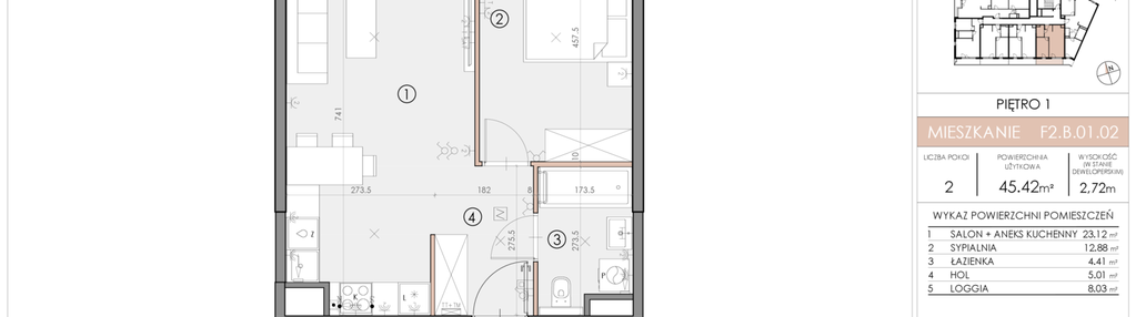
Nowe mieszkanie na sprzedaż 2 pokoje Warszawa Mokotów, 45,42 m2, 1 piętro - nr F2.B.01.02
Oferta sprzedaży od Matexi Polska Sp. z o.o.
Warszawa, Mokotów, Ksawerów, ul. Bukowińska 11 (5,6km od centrum Warszawy)

Główne cechy mieszkania
Ważne informacje
Mieszkanie 2 pokojowe
Dodatkowe informacje
Udogodnienia

Winda

Rowerownia

Usługi w budynku
Inwestycja
Bukowińska Mokotów etap 2
mazowieckie, Warszawa, Mokotów, Ksawerów
Mokotów od lat uchodzi za jedną z najbardziej pożądanych lokalizacji do zamieszkania w Warszawie. To dzielnica, która łączy renomę, wygodę oraz doskonałą infrastrukturę. Jest rozległa i zróżnicowana, a jej centralna część – okolice ulicy Bukowińskiej – to miejsce, w którym skupiają się wszystkie jej największe atuty. Doskonała komunikacja, bliskość biznesowego centrum miasta, a jednocześnie dostęp do zieleni i kultury sprawiają, że to jeden z najlepszych adresów do życia. Właśnie tutaj powstanie najnowsza inwestycja firmy Matexi Polska – projekt, który wpisuje się w standard nowoczesnego, miejskiego stylu życia. To propozycja dla tych, którzy oczekują najwyższej jakości, elegancji i komfortu w doskonałej lokalizacji. Nowoczesny i elegancki projekt przy Bukowińskiej Budynek będzie miał 11 kondygnacji nadziemnych oraz 3 kondygnacje podziemne. Znajdą się tutaj zarówno kompaktowe mieszkania dla singli, jak i przestronne apartamenty idealne dla rodzin. Bryła budynku płynnie wpisze się w otoczenie, a jego naturalna kolorystyka i wysokiej jakości materiały nadadzą spójności z okolicą. W garażu podziemnym znajdą się miejsca parkingowe, a także boxy rowerowe. Energooszczędne windy i oświetlenie LED w częściach wspólnych podniosą komfort użytkowania, wpłyną pozytywnie na efektywność energetyczną budynku i obniżą koszty eksploatacji.
Dostępne mieszkania w tej inwestycji
| Nazwa | Rzut | Pokoje | Powierzchnia | Piętro | Cena | Status |