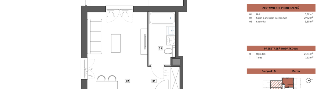
Nowe mieszkanie na sprzedaż 1 pokój Warszawa Bemowo, 36,79 m2, parter - nr D.04
Oferta sprzedaży od VINCI Immobilier Polska
Warszawa, Bemowo, Chrzanów, ul. Coopera 7 (8,2km od centrum Warszawy)

Główne cechy mieszkania
Ważne informacje
Mieszkanie 1 pokojowe
Dodatkowe informacje
Udogodnienia

Winda

Usługi w budynku
Inwestycja
Premiera Bemowo
mazowieckie, Warszawa, Bemowo, Chrzanów
Stwórz własną historię Premiera Bemowo to miejsce stworzone z myślą o mieszkańcach, łączące komfort z nowoczesną architekturą. Położone tuż przy budowanej stacji metra zapewnia wszystko, co potrzebne, aby żyć wygodnie, spokojnie, a jednocześnie blisko miejskich udogodnień. Niezwykły patron Premiera Bemowo to również niezwykła historia patrona ulicy, Merian C. Coopera amerykańskiego filmowca, reżysera i scenarzysty, a także generała armii USA oraz podpułkownika w Wojsku Polskim. Jego najpopularniejszym filmem stał się King Kong z 1933 roku. Szanujemy to dziedzictwo, dlatego filmowe odniesienia znajdziecie również w budynkach Premiery Bemowo.
Dostępne mieszkania w tej inwestycji
| Nazwa | Rzut | Pokoje | Powierzchnia | Piętro | Cena | Status |