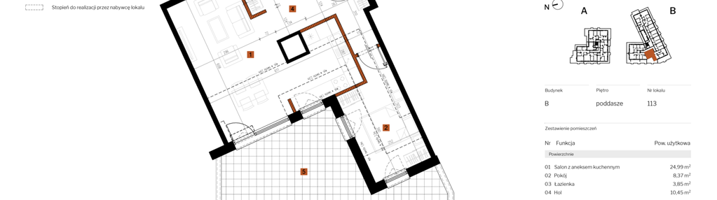
Nowe mieszkanie na sprzedaż 2 pokoje Warszawa Białołęka, 47,66 m2, 4 piętro - nr 113
Oferta sprzedaży od Mill-Yon Sp. z o.o.
Warszawa, Białołęka, Grodzisk, ul. Głębocka 109L (10,3km od centrum Warszawy)

Główne cechy mieszkania
Ważne informacje
Mieszkanie 2 pokojowe
Dodatkowe informacje
Udogodnienia

Winda

Plac zabaw
Inwestycja
MY Głębocka
mazowieckie, Warszawa, Białołęka, Grodzisk
Deweloper informuje, że nie rozpoczął sprzedaży w rozumieniu art. 5 pkt. 12 ustawy z dnia 20 maja 2021 r. o ochronie praw nabywcy lokalu mieszkalnego lub domu jednorodzinnego oraz deweloperskim funduszu gwarancyjnym (t. J.: Dz. U. z 2024 r., poz. 695 ze zm.)
Dostępne mieszkania w tej inwestycji
| Nazwa | Rzut | Pokoje | Powierzchnia | Piętro | Cena | Status |