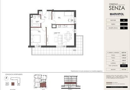
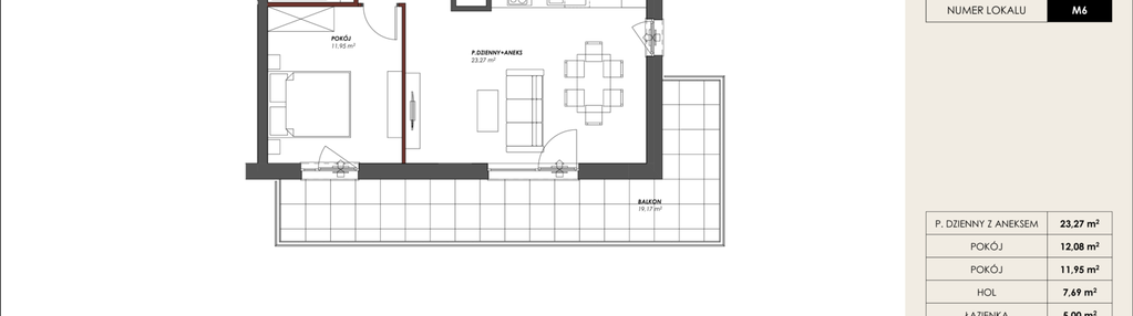
Nowe mieszkanie na sprzedaż 3 pokoje Warszawa Białołęka, 59,99 m2, 1 piętro - nr D.M06
Oferta sprzedaży od Marvipol Development
Warszawa, Białołęka, Nowodwory, ul. Grzymalitów 3 C-E (12,9km od centrum Warszawy)

Główne cechy mieszkania
Ważne informacje
Mieszkanie 3 pokojowe
Dodatkowe informacje
Udogodnienia

Inteligentny dom

Plac zabaw

Winda
Przyroda

Rezerwat przyrody
Inwestycja
Osiedle Senza
mazowieckie, Warszawa, Białołęka, Nowodwory
Osiedle Senza powstaje na warszawskich Nowodworach. To spokojny, cichy zakątek warszawskiej Białołęki, dobrze skomunikowany z centrum stolicy. Kameralne, trzybudynkowe osiedle, ukryte jest wśród nadwiślańskiej zieleni. Lokalizacja stanowi idealny łącznik między miejskim tempem życia i odpoczynkiem wśród natury. To kolejna inwestycja obok osiedla Juu i Gardenia Lagom zaprojektowana z myślą o tym, aby mieszkańcy mogli prowadzić życie w stylu slow. Umożliwi im to m.in. rozgraniczenie terenu na prywatne ogródki oraz wspólne półprywatne przestrzenie sprzyjające integracji mieszkańców i odpoczynkowi z dala od zgiełku miejskiego życia. Minimalizm form architektonicznych i ponadczasowa, stonowana kolorystyka stworzy spokojne i harmonijne otoczenie sprzyjające odprężeniu i wyciszeniu. Elewacja budynków wykończona zostanie tynkiem w odcieniu złamanej bieli. Wejścia do klatek zaakcentowano kolorem ciepłego drewna. Zgaszone odcienie zewnętrznych ścian urozmaici dekoracyjne boniowanie oraz nowoczesny wygląd balkonów. Ich stalowe balustrady dadzą lekki ażurowy efekt, a wypełnienie z ocynkowanej blachy perforowanej wprowadzi miękką grę światła do wnętrz mieszkań. Starannie dobrane materiały, jasne barwy oraz harmonijne połączenia faktur spowodują, że w tej wyciszającej przestrzeni będzie można cieszyć się estetyką otoczenia i wewnętrznym spokojem każdego dnia. W inwestycji zaplanowano 146 funkcjonalnych mieszkań o metrażach od 27 m² do 83 m² z rozkładami od 1– do 4-pokojowych. Każde z mieszkań posiadać będzie powierzchnie dodatkową w postaci balkonu lub ogródka. Większe lokale są zaprojektowane w układzie dwustronnym lub narożnym. Przemyślane i funkcjonalne rozkłady zapewnią swobodę aranżacji i wykończenie zgodne z indywidualnymi preferencjami.
Dostępne mieszkania w tej inwestycji
| Nazwa | Rzut | Pokoje | Powierzchnia | Piętro | Cena | Status |