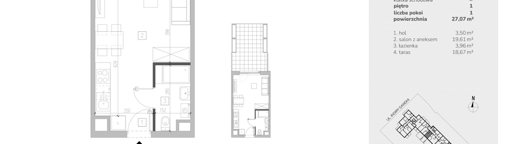
Nowe mieszkanie na sprzedaż 1 pokój Warszawa Ursynów, 27,07 m2, 1 piętro - nr MA036
Oferta sprzedaży od GH Development
Warszawa, Ursynów, Ursynów Centrum, ul. Indiry Gandhi 7 (9,2km od centrum Warszawy)

Główne cechy mieszkania
Ważne informacje
Mieszkanie 1 pokojowe
Dodatkowe informacje
Udogodnienia

Rowerownia

Usługi w budynku

Inteligentny dom

Winda
Przyroda

Park
Inwestycja
Ale!Ken
mazowieckie, Warszawa, Ursynów, Ursynów Centrum
Ale! Miejsce. Ale! Życie. Odkryj na nowo znajomą dzielnicę. Zaznaj komfortu, który zostanie z Tobą na zawsze. ALE!KEN to kameralne osiedle mieszkaniowe, w którym zieleń stanowi rdzeń projektu. W centralnej części zaprojektowano ponad 2700 m² przestrzeni pełnej drzew, krzewów i alejek, a wokół budynków przewidziano dodatkowe nasadzenia, które naturalnie łączą się z sąsiednim parkiem linearnym i Parkiem Polskich Wynalazców. Poza zielenią na uwagę zasługuje też przemyślana architektura – nowoczesna, ale nienachalna, wpisana w charakter Ursynowa i wykończona jakościowymi materiałami, które robią wrażenie już od wejścia. Duże przeszklenia i eleganckie detale dodają miejscu wyjątkowego charakteru. A wszystko to w doskonałej lokalizacji – tuż przy stacji metra Imielin, z przystankiem autobusowym pod samym wejściem i pełnym zapleczem usługowym. UDOGODNIENIA Ale! Wygodnie Wszystko, czego potrzebujesz, jest o krok od domu, ale! wejście do metra tuż obok sprawia, że całe miasto jest na wyciągnięcie ręki. Ale! Okolica Spacer po skwerze zaczynasz pod domem. Po urzędowe formalności przechodzisz tylko przez ulicę. A od centrum kultury i dwóch supermarketów dzieli Cię jedno skrzyżowanie. Ale! Odjazd Z przystanku pod domem rusza 8 linii autobusowych do dowolnej części miasta, ale najlepsze jest to, że na peron metra masz bliżej niż do sąsiadów. Ale! Jazda Jako kierowca na pewno docenisz garaż, platformy parkingowe czy ładowarki do elektryków*, ale! przede wszystkim, że ulica przy wjeździe nigdy się nie korkuje. *Dla wybranych miejsc parkingowych możliwość zamontowania ładowarek dla samochodów elektrycznych Ale! Trasa Ścieżki rowerowe zaczynają się pod domem, a rowerownia i stojaki tylko czekają na Twój powrót z ulubionej trasy. DZIELNICA Ale! Blisko Ursynów daje Ci wszystko na wyciągnięcie ręki — sklepy, restauracje, szkoły, usługi, uczelnie i tereny zielone. Ale jeśli masz apetyt na więcej, to w 17 minut jesteś w samym centrum Warszawy. Projekt zlokalizowany jest przy samej stacji metra Imielin, które zapewnia szybkie I komfortowe połączenie z innymi częściami Warszawy. W zasięgu 500 metrów znajdują się wszystkie kluczowe punkty codziennego życia: sklepy, piekarnie, apteki, szkoły, przedszkola, przychodnie, parki czy stacja Veturilo. Po drugiej stronie ulicy mieści się Urząd Dzielnicy i Centrum Kultury „Alternatywy”. W najbliższej okolicy nie brakuje także restauracji, kawiarni i barów. Ursynów łączy zieleń, infrastrukturę i świetną komunikację — to jedna z najbardziej kompletnych dzielnic do życia w Warszawie. ARCHITEKTURA Ale! Stylowo Wpisana w otoczenie architektura podkreśla charakter Ursynowa, ale! to starannie dobrane materiały i dopracowane detale nadają wyjątkowego stylu. Ale! Detal Zielona ceramika nie tylko fenomenalnie wygląda na elewacji, ale też przypomina o naturze, która zaczyna się tuż za progiem. Ale! Wejście Lobby budynku wita Cię szlachetnymi tynkami, minimalistycznymi frezami i eleganckim oświetleniem. To przestrzeń, która daje komfort, zanim jeszcze przekroczysz próg mieszkania. Ale! Widok Na najwyższych piętrach kręcone schody prowadzą na duże prywatne tarasy, ale! przestronne balkony i wysokie okna w innych mieszkaniach pozwalają tak samo cieszyć się panoramą Ursynowa. ALE!KEN to przykład stosowania najlepszych praktyk współczesnej architektury. Wpisuje się w charakter Ursynowa, a jednocześnie wnosi świeżość i lekkość. Projekt wyróżniają proste, geometryczne formy, minimalistyczne wnętrza i duże przeszklenia. Charakterystycznym elementem elewacji są zielone ceramiczne płytki – nietypowe wykończenie, które nadaje całości unikatowy, miejsko-naturalny styl. Przestrzeń pomiędzy budynkami zapewnia prywatność oraz lepsze doświetlenie mieszkań. A wszystko po to, by codzienność stała się jaśniejsza i lżejsza – niezależnie od metrażu. ZIELEŃ Ale! Zielono Drzewa i roślinność wokół budynku zapewniają codzienną dawkę natury, ale! to zieleń Ursynowa pozwala naprawdę rozwinąć skrzydła. Ale! Naturalnie Przestrzeń między budynkami przepełnia zieleń, ale! to dopiero początek, bo zaraz za nią zaczyna się park linearny i Park Wynalazców. Ale! Majestatycznie Kilka minut od domu zaczyna się inny świat. Park Natoliński z historycznym pałacem i Las Kabacki to Twoja przestrzeń na głęboki oddech i naturalny relaks. Ale! Sportowo Na świeżym powietrzu nigdy nie ma nudy, kiedy w pobliżu masz wszystko: od skweru sportów miejskich, przez korty tenisowe, po pumptrack na Górce Kazoora. STANDARD W ALE!KEN dbałość o jakość zaczyna się już od wejścia. Lobby zostało zaprojektowane z wykorzystaniem szlachetnych tynków, frezowanych elementów ściennych i subtelnego oświetlenia. Każda klatka schodowa posiada windę oraz bezpośrednie połączenie z garażem podziemnym. W budynku przewidziano nowoczesne systemy wentylacji, monitoring, stojaki rowerowe i strefy rekreacyjne dla mieszkańców. Standard inwestycji łączy trwałość materiałów, wygodę użytkowania i przyjazny detal bez kompromisów. Ale! Wybór Znajdziesz tu zarówno przytulne kawalerki, jak i większe mieszkania dla rodzin, ale! jeśli marzy ci się naprawdę duża przestrzeń, koniecznie zobacz penthousy z podwyższonymi sufitami Oferta ALE!KEN jest bardzo szeroka – od kompaktowych kawalerek idealnych dla singli czy inwestorów, przez wygodne mieszkania 2- i 3-pokojowe, aż po wyjątkowe penthouse’y o powierzchni do 130 m². Wysokie przeszklenia zapewniają świetne doświetlenie wnętrz, a funkcjonalne układy pomieszczeń dają dużą swobodę aranżacji. Największe mieszkania oferują dodatkowo podwyższone sufity i dostęp do prywatnych tarasów z widokiem na panoramę Ursynowa. INWESTOR Ale! Solidnie GH Development od lat kreuje w Polsce przestrzenie do życia, które reprezentują dbałość o detal w każdym projekcie. Ale dopiero połączenie międzynarodowego doświadczenia z Belgii i Luksemburga, obszernej wiedzy 90-osobowego zespołu i ponad 100 lat obecności na rynku potwierdza niezawodność marki. KONTAKT Ale! Numer Zakup mieszkania to poważna decyzja, ale! nasz zespół pomoże Ci na każdym etapie.
Dostępne mieszkania w tej inwestycji
| Nazwa | Rzut | Pokoje | Powierzchnia | Piętro | Cena | Status |