Nowe mieszkanie na sprzedaż 4 pokoje Warszawa Wawer, 70,32 m2, 1 piętro - nr 29
Oferta sprzedaży od Jeziorowa House Sp. z o.o.
Warszawa, Wawer, Zerzeń, ul. Jeziorowa 40 (8,8km od centrum Warszawy)


Główne cechy mieszkania
Ważne informacje
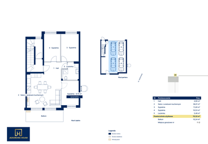
Mieszkanie 4 pokojowe
Dodatkowe informacje
Udogodnienia

Klimatyzacja
Przyroda

Park

Jezioro

Rezerwat przyrody

Las
Inwestycja

Nova Jeziorowa 2
mazowieckie, Warszawa, Wawer, Zerzeń
Nova Jeziorowa 2 Osiedle NOVA JEZIOROWA to inwestycja składająca się z 48 mieszkań usytuowanych w 8 kameralnych budynkach, położona w zielonej dzielnicy Warszawy – Wawrze. Funkcjonalny układ wnętrz pozwala na aranżację 3 lub 4 pokoi . Do każdego lokalu przynależy duży balkon, dwa miejsca postojowe w przestronnych garażach, a do wybranych lokali ogródki o powierzchni od 34 do 399 m². Inwestycja posiada podłączenie do kanalizacji miejskiej i wszystkich mediów oraz światłowodu. Bliskość szkół, przedszkoli, opieki medycznej, sieci usług oraz terenów zielonych zapewni przyszłym mieszkańcom wygodę oraz wysoki standard codziennego życia. W cenę lokalu wliczona jest cena 90 000 za 2 miejsca postojowe w garażu , a do lokali usytuowanych na I piętrze wliczona jest cena przynależnego ogródka o powierzchni od 34 -399 m². Atuty inwestycji: - 2 miejsca garażowe na wyłączność do każdego mieszkania - doprowadzone wszystkie media miejskie: kanalizacja, woda, prąd, gaz, światłowód - ogrzewanie podłogowe - klimatyzator w każdym lokalu - duże balkony - ogródki przypisane do poszczególnych mieszkań - szybki dojazd do Centrum Warszawy – 15 min - wszystkie lokale przekazywane w standardzie deweloperskim
Dostępne mieszkania w tej inwestycji
Nazwa | Rzut | Pokoje | Powierzchnia | Piętro | Cena | Status |