Nowe mieszkanie na sprzedaż 3 pokoje Warszawa Praga-Południe, 59,36 m2, 1 piętro - nr 7
Oferta sprzedaży od Lugra
Warszawa, Praga-Południe, Gocławek, ul. Jordanowska 18 (8,1km od centrum Warszawy)

Główne cechy mieszkania
Ważne informacje
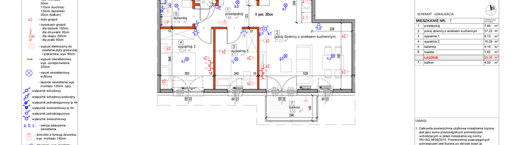
Mieszkanie 3 pokojowe
Dodatkowe informacje
Udogodnienia

Winda
Przyroda

Park
Inwestycja
Apartamenty Jordanowska
mazowieckie, Warszawa, Praga-Południe, Gocławek
Nowoczesne mieszkania na Gocławku Apartamenty Jordanowska to kameralna inwestycja przy ul. Jordanowskiej 18 na warszawskim Gocławku, w dzielnicy Praga-Południe. Lokalizacja blisko Trasy Siekierkowskiej i komunikacji miejskiej zapewnia szybki dojazd do centrum. Komfort i funkcjonalność Nowoczesny, czterokondygnacyjny budynek mieści 17 mieszkań o metrażach od 31 do 73 m². Każde z nich posiada balkon, taras lub ogródek na parterze. W ofercie są zarówno kompaktowe kawalerki, jak i wygodne mieszkania rodzinne. Udogodnienia dla mieszkańców Do dyspozycji mieszkańców przewidziano garaż podziemny z 18 miejscami postojowymi i komórkami lokatorskimi, windę oraz funkcjonalne pomieszczenia wspólne. Teren wokół budynku zostanie zagospodarowany zielenią, drogą wewnętrzną i nowym ogrodzeniem z wejściem od strony ulicy. Spokojna okolica blisko centrum Apartamenty Jordanowska powstają na warszawskim Gocławku – zielonej i kameralnej części dzielnicy Praga-Południe. To miejsce, które łączy w sobie spokój osiedlowej zabudowy z wygodnym dostępem do głównych arterii miasta. Świetna komunikacja Bliskość Trasy Siekierkowskiej oraz dobre połączenia kolejowe i autobusowe gwarantują szybki dojazd do centrum Warszawy oraz innych dzielnic. Dzięki temu mieszkańcy mogą korzystać z pełnej oferty kulturalnej, edukacyjnej i biznesowej stolicy, zachowując komfort życia w cichej i przyjaznej okolicy. Codzienna wygoda W sąsiedztwie inwestycji znajdują się liczne sklepy, punkty usługowe, szkoły i przedszkola. Blisko jest także do terenów rekreacyjnych i ścieżek spacerowych, które sprzyjają aktywnemu wypoczynkowi. Idealne miejsce do życia Jordanowska 18 to lokalizacja, która spełni oczekiwania zarówno singli, jak i rodzin – zapewniając codzienną wygodę, bezpieczeństwo i komfort szybkiego dojazdu do wszystkich części miasta.
Dostępne mieszkania w tej inwestycji
| Nazwa | Rzut | Pokoje | Powierzchnia | Piętro | Cena | Status |