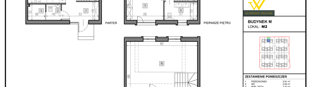
Nowe mieszkanie na sprzedaż 5 pokoi Warszawa Białołęka, 111,58 m2, parter - nr M2
Oferta sprzedaży od Juranda Village Sp. z o.o.
Inwestycja ograniczonaWarszawa, Białołęka, Brzeziny, ul. Kołodzieja (9,7km od centrum Warszawy)

Główne cechy mieszkania
Ważne informacje
Mieszkanie 5 pokojowe
Inwestycja
Juranda Village etap II
mazowieckie, Warszawa, Białołęka, Brzeziny
Osiedle mieszkaniowe JURANDA VILLAGE z lokalizowane jest przy skrzyżowaniu ulicy Piasta Kołodzieja oraz Krzemiennej w dzielnicy Białołęka w Warszawie. W pobliżu inwestycji znajdują się liczne sklepy, miejsca edukacji w tym szkoła podstawowa, przedszkole oraz żłobek. Ponadto w niedalekiej odległości skorzystać można z obiektów rekreacji sportowej oraz terenów zielonych. Dogodny dojazd na osiedle możliwy jest przez ulicę Ostródzką oraz Juranda ze Spychowa, dzięki którym można dostać się do trasy szybkiego ruchu S8. W przypadku osób poruszających się komunikacją miejską istnieje możliwość skorzystania z dwóch blisko położonych przystanków autobusowych. W obecnej fazie planowane jest wybudowanie 16 budynków w zabudowie bliźniaczej dwulokalowych, gdzie mieścić się będzie 32 lokale mieszkalne. Każdy z nich jest odrębnym 3 kondygnacyjnym mieszkaniem z własnym ogródkiem. Decydując się na zakup mieszkania w ofercie otrzymają Państwo: – 2 miejsca postojowe (na zewnątrz – przed budynkiem), – Instalację gotową pod fotowoltaikę, – Instalację pod ładowarkę samochodową (na życzenie Klienta). Ponadto mieszkanie wyposażone będzie w pompę ciepła, a dodatkowym jego atutem jest możliwość całkowicie personalnej aranżacji trzeciej kondygnacji.
Dostępne mieszkania w tej inwestycji
| Nazwa | Rzut | Pokoje | Powierzchnia | Piętro | Cena | Status |