Nowe mieszkanie na sprzedaż 1 pokój Warszawa Praga-Północ, 25,26 m2, 3 piętro - nr A-KL-B.72
Oferta sprzedaży od PROFIT Development
Warszawa, Praga-Północ, Nowa Praga, ul. Konopacka (3,8km od centrum Warszawy)

Główne cechy mieszkania
Ważne informacje
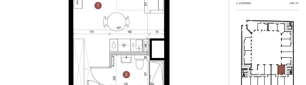
Mieszkanie 1 pokojowe
Dodatkowe informacje
Udogodnienia

Patio / Dziedziniec

Rowerownia
Przyroda

Rzeka

Park
Inwestycja
Konopacka
mazowieckie, Warszawa, Praga-Północ, Nowa Praga
W RYTMIE NOWEJ PRAGI Praga to wyjątkowa dzielnica Warszawy, która od kilku lat przechodzi proces rewitalizacji. Konopacka, to inwestycja zlokalizowana w samym jej centrum i otoczona piękną, historyczną zabudową. Sam projekt, to nietuzinkowa koncepcja łącząca starą, zabytkową część budynku z nową, współczesną formą, która domknie pierzeję ulicy. Jedną część projektu stanowi zabytkowa oficyna, odtwarzana zgodnie z zaleceniami konserwatora zabytków, z zachowaniem pierwotnych elementów balkonów i piękną, drewnianą klatką schodową. Oryginalne będą również oznaczenia mieszkań i kolorystyka. Każdy element projektu jest starannie zaprojektowany tak, aby jak najlepiej odtworzyć jego dawny charakter. Wysokość mieszkań wyniesie tu do 3,39 m, a elewacja wykończona zostanie tynkiem renowacyjnym. 30 MIESZKAŃ 1-2 POKOJE, O POWIERZCHNIACH OD 25,25 M2 DO 49,69 M2 Druga część to zupełnie nowa, dobudowana tkanka, stanowiąca wspólną bryłę z zabytkową kamienicą. Nowy budynek wyróżni współczesna, prosta i ponadczasowa architektura. Średnia powierzchnia mieszkań to ok. 30 m2. Z tarasów na ostatnim pietrze rozpościerać się będzie widok na centrum Warszawy. Budynek wyposażony zostanie w komórki lokatorskie, rowerownie i stację naprawy rowerów, a także ogólnodostępną pralnię oraz monitoring. 119 MIESZKAŃ 1-3 POKOJE O POWIERZCHNIACH OD 25,17 M2 DO 59,79 M2 BALKONY I TARASY
Dostępne mieszkania w tej inwestycji
| Nazwa | Rzut | Pokoje | Powierzchnia | Piętro | Cena | Status |