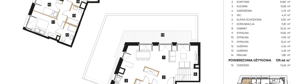
Nowe mieszkanie na sprzedaż 5 pokoi Warszawa Śródmieście, 139,46 m2, parter - nr 41
Oferta sprzedaży od Mostostal S.A.
Warszawa, Śródmieście, Nowe Miasto, ul. Konwiktorska 4 (2,9km od centrum Warszawy)

Główne cechy mieszkania
Opis nieruchomości o powierzchni 139,46 m2
Mieszkanie w inwestycji: Konwiktorska Residence
Lokal mieszkalny - 5 pokoi z aneksem kuchennym
Ważne informacje
Mieszkanie 5 pokojowe
Dodatkowe informacje
Udogodnienia

Usługi w budynku

Inteligentny dom

Winda
Inwestycja
Dostępne mieszkania w tej inwestycji
| Nazwa | Rzut | Pokoje | Powierzchnia | Piętro | Cena | Status |