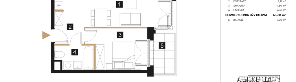
Nowe mieszkanie na sprzedaż 2 pokoje Warszawa Śródmieście, 43,68 m2, 1 piętro - nr 07
Oferta sprzedaży od Mostostal S.A.
Warszawa, Śródmieście, Nowe Miasto, ul. Konwiktorska 4 (2,9km od centrum Warszawy)

Główne cechy mieszkania
Opis nieruchomości o powierzchni 43,68 m2
Mieszkanie w inwestycji: Konwiktorska Residence
Lokal mieszkalny - 2 pokoje z aneksem kuchennym
Ważne informacje
Mieszkanie 2 pokojowe
Dodatkowe informacje
Udogodnienia

Inteligentny dom

Winda

Usługi w budynku
Inwestycja
Dostępne mieszkania w tej inwestycji
| Nazwa | Rzut | Pokoje | Powierzchnia | Piętro | Cena | Status |