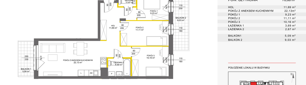
Nowe mieszkanie na sprzedaż 4 pokoje Warszawa Białołęka, 70,78 m2, 1 piętro - nr IV.11
Oferta sprzedaży od Grupa Victoria Dom
Warszawa, Białołęka, Kobiałka, ul. Mańkowska 2A (13,2km od centrum Warszawy)

Główne cechy mieszkania
Ważne informacje
Mieszkanie 4 pokojowe
Dodatkowe informacje
Udogodnienia

Wózkarnia

Plac zabaw

Winda
Przyroda

Rezerwat przyrody
Inwestycja
Olchowy Park IV
mazowieckie, Warszawa, Białołęka, Kobiałka
Znajdź wymarzone mieszkanie dla Siebie i swojej rodziny! Dlaczego warto wybrać mieszkanie w Victoria Dom? Atrakcyjne lokalizacje: Mieszkania w najlepszych dzielnicach Warszawy. Dobrze zaplanowane: Zaprojektowane z myślą o komforcie i wygodzie. Przestrzeń zielona: Atrakcyjna, dobrze zaprojektowana zielona przestrzeń na naszych osiedlach. Gotowe do odbioru: Wybrane mieszkania dostępne od ręki. Zintegrowana infrastruktura: Na naszych osiedlach znajdziecie drogi dojazdowe, bezpieczne chodniki i ścieżki rowerowe. ZIELONA ENERGIA NA KAŻDY DZIEŃ Olchowy Park to nowe osiedle w ofercie, które powstaje w dzielnicy Białołęka przy ul. Mańkowskiej. Okolica osiedla jest zielona i spokojna co sprzyja aktywnym formom spędzania czasu w rodzinnym gronie. Pobliskie sąsiedztwo pokrywają łąki kwietne, które nadają okolicy niezwykle przyjazny, sielankowy klimat. W dalszym sąsiedztwie znajdują się kompleksy leśne tworzące: Rezerwat Przyrody Łęgi Czarnej Strugi oraz Puszczę Słupecką. Wprowadzony do sprzedaży etap Osiedla Olchowy Park to budynek o czterech kondygnacjach naziemnych, w ramach których powstają 63 mieszkania z balkonami lub ogródkami. Wyboru można dokonać spośród 1,2,3,4 i 5 -pokojowych lokali o metrażach od 25 m2 do 86 m2. Każde z mieszkań posiada funkcjonalny układ. Termin zakończenia prac budowlanych: 30 czerwca 2023
Dostępne mieszkania w tej inwestycji
| Nazwa | Rzut | Pokoje | Powierzchnia | Piętro | Cena | Status |