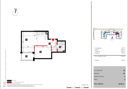
Nowe mieszkanie na sprzedaż 2 pokoje Warszawa Białołęka, 43,04 m2, 2 piętro - nr 61
Oferta sprzedaży od W.W. Investment Sp. z o. o.
Warszawa, Białołęka, Kobiałka, ul. Mochtyńska 56 (13,7km od centrum Warszawy)

Główne cechy mieszkania
Ważne informacje
Mieszkanie 2 pokojowe
Dodatkowe informacje
Udogodnienia

Plac zabaw

Usługi w budynku

Rowerownia

Winda
Przyroda

Las
Inwestycja
Dostępne mieszkania w tej inwestycji
| Nazwa | Rzut | Pokoje | Powierzchnia | Piętro | Cena | Status |