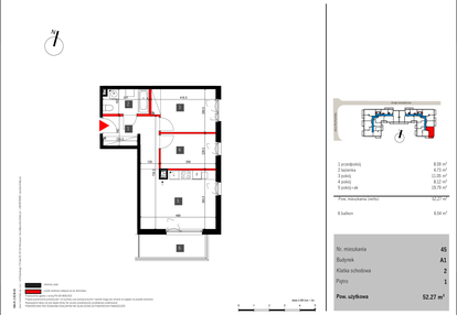
Nowe mieszkanie na sprzedaż 3 pokoje Warszawa Białołęka, 52,27 m2, 1 piętro - nr 45
Oferta sprzedaży od W.W. Investment Sp. z o. o.
Warszawa, Białołęka, Kobiałka, ul. Mochtyńska 56 (13,7km od centrum Warszawy)

Główne cechy mieszkania
Ważne informacje
Mieszkanie 3 pokojowe
Dodatkowe informacje
Udogodnienia

Rowerownia

Usługi w budynku

Winda

Plac zabaw
Przyroda

Las
Inwestycja
Dostępne mieszkania w tej inwestycji
| Nazwa | Rzut | Pokoje | Powierzchnia | Piętro | Cena | Status |