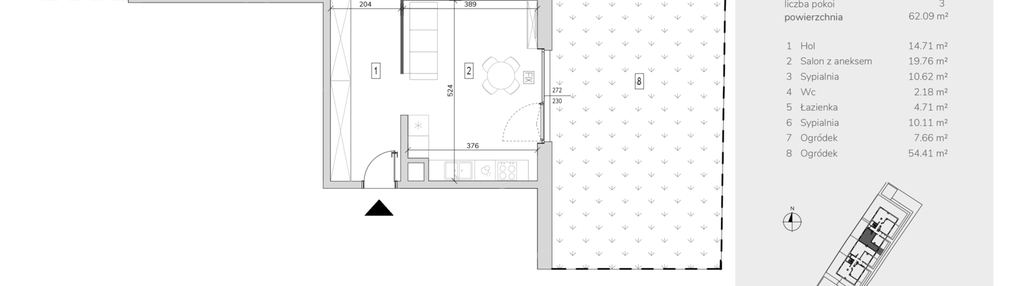
Nowe mieszkanie na sprzedaż 3 pokoje Warszawa Włochy, 62,09 m2, parter - nr B0-05
Oferta sprzedaży od GH Development
Warszawa, Włochy, Raków, ul. Orzechowa 1 (6,5km od centrum Warszawy)

Główne cechy mieszkania
Ważne informacje
Mieszkanie 3 pokojowe
Dodatkowe informacje
Udogodnienia

Usługi w budynku

Winda

Inteligentny dom
Inwestycja
Orzechowa 2
mazowieckie, Warszawa, Włochy, Raków
Orzechowa 2 to najnowsza warszawska inwestycja belgijskiej spółki GH Development, inspirowana rytmem nowoczesnego miasta. W inwestycji zaplanowano 120 mieszkań o różnych metrażach i układach. Na parterze budynku powstaną lokale oferujące mieszkańcom niezbędne na co dzień usługi. Z połączenia prostej i nowoczesnej architektury z najwyższą jakością wykonania powstanie harmonijna całość, która przyciągnie młodych, aktywnych oraz poszukujących nowego miejsca dla siebie mieszkańców. Dobra lokalizacja - wygodne życie Orzechowa 2 powstaje we Włochach – spokojnej, dobrze skomunikowanej dzielnicy z pełną infrastrukturą w pobliżu. To idealne miejsce do wygodnego życia. Przemyślana architektura i funkcjonalne rozwiązania Orzechowa 2 to jasne, funkcjonalne mieszkania z balkonami lub ogródkami oraz wygodne miejsca postojowe w garażu i na terenie osiedla.
Dostępne mieszkania w tej inwestycji
| Nazwa | Rzut | Pokoje | Powierzchnia | Piętro | Cena | Status |