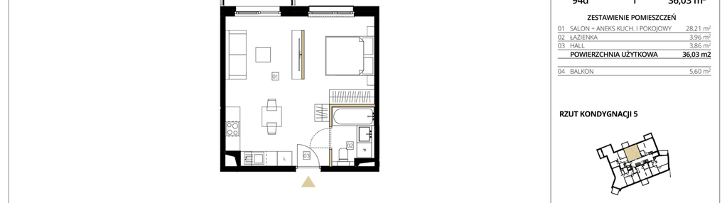
Nowe mieszkanie na sprzedaż 1 pokój Warszawa Praga-Południe, 35,99 m2, 4 piętro - nr E-94
Oferta sprzedaży od Grupo Lar Polska & Galio
Warszawa, Praga-Południe, Kamionek, ul. Owsiana (4,4km od centrum Warszawy)

Główne cechy mieszkania
Ważne informacje
Mieszkanie 1 pokojowe
Dodatkowe informacje
Udogodnienia

Plac zabaw

Patio / Dziedziniec

Inteligentny dom

Usługi w budynku

Winda

Rowerownia
Przyroda

Park
Inwestycja
Symfonia Praga
mazowieckie, Warszawa, Praga-Południe, Kamionek
Symfonia Praga Poznaj inwestycję w sercu warszawskiej Pragi-Południe, dzielnicy o historycznym rytmie i kulturalnej melodii. Architektura 5 budynków i wewnętrzne patio – spokojna zielona przestrzeń dla mieszkańców Zgrane sąsiedztwo jedynie 156 mieszkań o powierzchni 33-132 m2 Akord Natury wewnętrzne patio, ogródki, duże balkony i tarasy, pobliskie Park Skaryszewski oraz Park Obwodu Praga Armii Krajowej Ekologia Certyfikat BREEAM, panele słoneczne, odzyskiwanie deszczówki, smart home, poidełka Bezpieczeństwo recepcja, ochrona, monitoring, rolety na parterze, smart home, videodomofony, zamknięty teren Parking parking, dystrybutor pompowania opon, stacja napraw rowerów, stojaki na rowery Komunikacja przystanki tramwajowe i autobusowe, stacja metra Stadion Narodowy, planowane stacje III linii metra, Dworzec Warszawa Wschodnia Społeczność recepcja, event room, plac zabaw Sąsiedztwo Urząd Dzielnicy Praga-Południe, Sąd Rejonowy, sklepy, kawiarnie, restauracje, galerie Kulturalny Ton Teatr Powszechny, PGE Stadion Narodowy, Symfonia Varsovia, Muzeum Czekolady E.Wedel, SOHO Art Center, Muzeum Neonów Edukacja Uniwersytet SWPS, Szkoła Podstawowa nr 255 im. C.K. Norwida, Liceum Fundacji Szkolnej, przedszkola i żłobki Pupile SPA dla czworonogów, poidełka
Dostępne mieszkania w tej inwestycji
| Nazwa | Rzut | Pokoje | Powierzchnia | Piętro | Cena | Status |