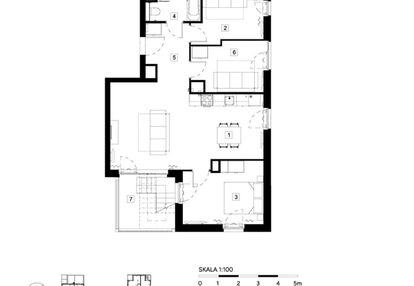
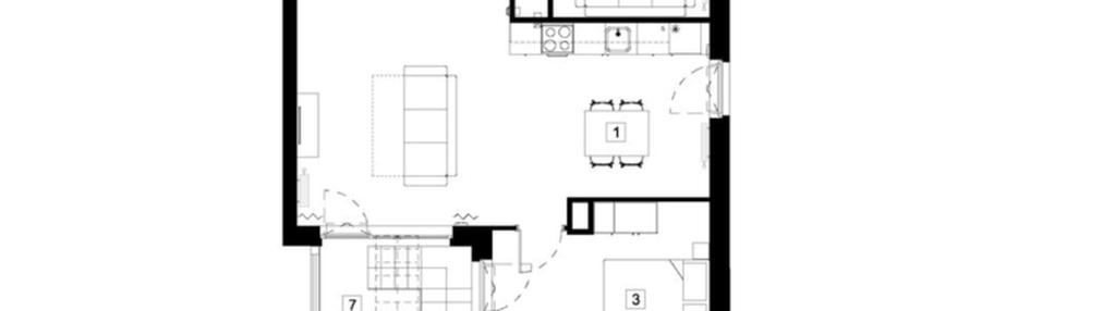
Nowe mieszkanie na sprzedaż 4 pokoje Warszawa Praga-Północ, 70,93 m2, 8 piętro - nr M184
Oferta sprzedaży od Białostocka Property Sp. z o.o
Warszawa, Praga-Północ, Szmulowizna, ul. Białostocka 5D (3,6km od centrum Warszawy)

Główne cechy mieszkania
Ważne informacje
Mieszkanie 4 pokojowe
Dodatkowe informacje
Udogodnienia

Usługi w budynku

Winda

Patio / Dziedziniec
Przyroda

Park
Inwestycja
Oh! Praga
mazowieckie, Warszawa, Praga-Północ, Szmulowizna
Komfortowe mieszkania w sercu Pragi-Północ Inwestycja Oh! Praga to wyjątkowy projekt zlokalizowany w sercu warszawskiej Pragi-Północ, przy ul. Białostockiej 5D. Dzięki doskonałej lokalizacji, zaledwie kilkanaście minut od centrum Warszawy, inwestycja zapewnia mieszkańcom szybki dostęp do kluczowych punktów miasta oraz licznych usług. Doskonała komunikacja miejska Lokalizacja Oh! Praga wyróżnia się świetnym dostępem do komunikacji miejskiej. W okolicy znajdują się przystanki autobusowe, tramwajowe oraz stacja metra Dworzec Wileński, który umożliwia szybkie przemieszczanie się po stolicy. Dodatkowo, Dworzec Warszawa Wileńska to ważny punkt, zapewniający wygodne połączenia z innymi częściami miasta. Bliskość edukacji i usług W bezpośrednim sąsiedztwie znajdują się placówki edukacyjne, takie jak przedszkole oraz liceum. W pobliżu dostępne są liczne sklepy, w tym Galeria Wileńska, market i sklep osiedlowy, zapewniające wygodne codzienne zakupy. Natomiast miłośnicy kultury i dobrej kuchni z pewnością docenią Centrum Praskie Koneser, które znajduje się po drugiej stroni ulicy. Rozrywka i rekreacja w zasięgu ręki W okolicy znajduje się park – idealne miejsce na spacery, jogging i aktywny wypoczynek na świeżym powietrzu.. Dodatkowo, bliskość rzeki sprzyja relaksowi i rekreacji w otoczeniu natury. Inwestycja Oh! Praga to połączenie komfortu i wyjątkowej lokalizacji. To idealne miejsce dla osób ceniących szybki dostęp do centrum miasta, bogatą ofertę edukacyjną oraz szeroką gamę usług i atrakcji w najbliższej okolicy.
Dostępne mieszkania w tej inwestycji
| Nazwa | Rzut | Pokoje | Powierzchnia | Piętro | Cena | Status |