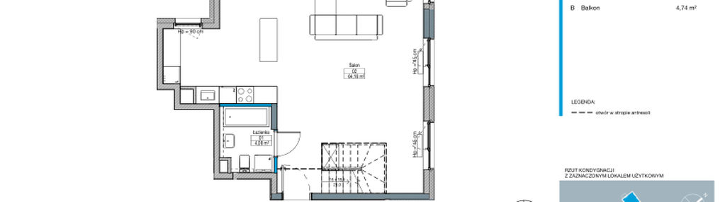
Nowe mieszkanie na sprzedaż 1 pokój Warszawa Białołęka, 101,90 m2, 3 piętro - nr BA0301
Oferta sprzedaży od YIT Development Sp. z o.o.
Warszawa, Białołęka, Tarchomin, ul. Talarowa (11,3km od centrum Warszawy)

Główne cechy mieszkania
Ważne informacje
Mieszkanie 1 pokojowe
Dodatkowe informacje
Udogodnienia

Plac zabaw

Usługi w budynku

Rowerownia

Winda
Przyroda

Las
Inwestycja
Talarowa Park
mazowieckie, Warszawa, Białołęka, Tarchomin
Talarowa Park to inwestycja największego fińskiego dewelopera – YIT. Talarowa Park będzie miejscem idealnym dla osób pragnących połączyć bliskość natury z bliskością miasta. W niskiej, czteropiętrowej zabudowie w ramach pierwszego etapu powstanie 128 mieszkań. Ich uzupełnieniem są garaż podziemny oraz naziemne miejsca parkingowe. Na terenie inwestycji powstaną także 3 lokale usługowe, które usprawnią Twoje codzienne funkcjonowanie. Dla bezpieczeństwa mieszkańców osiedle będzie monitorowane. Tworząc Talarowa Park, pomyśleliśmy o wszystkim – doskonałej lokalizacji, bliskości natury i perfekcyjnym wykonaniu. Sięgamy wyłącznie po materiały wysokiej jakości – tak, by zyskać pewność, że w pełni odpowiedzą na Twoje oczekiwania. Wybierane przez nas stylowe materiały pozwala ją budować fiński design, ale są też w pełni funkcjonalne.
Dostępne mieszkania w tej inwestycji
| Nazwa | Rzut | Pokoje | Powierzchnia | Piętro | Cena | Status |