Nowe mieszkanie na sprzedaż 2 pokoje Warszawa Białołęka, 34,02 m2, 1 piętro - nr 64
Oferta sprzedaży od Grupa Victoria Dom
Warszawa, Białołęka, Brzeziny, ul. Włodkowica (8,9km od centrum Warszawy)

Główne cechy mieszkania
Ważne informacje
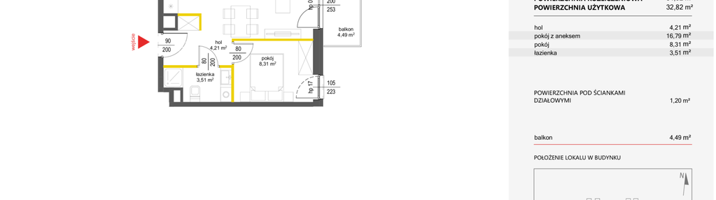
Mieszkanie 2 pokojowe
Dodatkowe informacje
Udogodnienia

Wózkarnia

Winda

Plac zabaw

Rowerownia
Inwestycja
Nova Viva Garden 7
mazowieckie, Warszawa, Białołęka, Brzeziny
Nova Viva Garden 7 przy ul. Włodkowica w Warszawie łączy stylową architekturę z harmonią natury. W nowym etapie inwestycji czeka na Ciebie bo aż 89 mieszkań idealnie zaprojektowanych, z balkonami lub ogródkami, o powierzchniach od 26 do 65 m2 w konfiguracjach od 1- do 4-pokojowych.
Dostępne mieszkania w tej inwestycji
| Nazwa | Rzut | Pokoje | Powierzchnia | Piętro | Cena | Status |