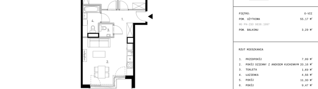
Nowe mieszkanie na sprzedaż 3 pokoje Warszawa Mokotów, 55,12 m2, 4 piętro - nr A5.4
Oferta sprzedaży od Strus Development Sp. z o.o.
Warszawa, Mokotów, Służewiec, ul. Wynalazek 3A (5,8km od centrum Warszawy)

Główne cechy mieszkania
Ważne informacje
Mieszkanie 3 pokojowe
Dodatkowe informacje
Udogodnienia

Plac zabaw

Winda
Przyroda

Park
Inwestycja
Wynalazek 3A
mazowieckie, Warszawa, Mokotów, Służewiec
Inwestycja Wynalazek 3A powstaje w sercu biznesowego centrum Mokotowa. Sąsiedztwo licznych biurowców sprawia, że droga do pracy stanie się przyjemnym spacerem, zaś bogata oferta usług dostępnych w okolicy zaspokoi wszelkie codzienne potrzeby. Lokalizacja inwestycji jest dogodnie skomunikowana z innymi częściami miasta – nieopodal znajdują się przystanki linii tramwajowych i autobusowych oraz obwodnica Warszawy. Projekt prezentowanego kompleksu zakłada budowę czterech budynków mieszkaniowych wielorodzinnych oraz dwóch hoteli z apartamentami na wynajem. Starannie przemyślane układy mieszkań o rozsądnych metrażach, stonowana, ponadczasowa architektura i wysoka jakość wykończenia budynków oraz klatek schodowych, a także około kilka tysięcy roślin w projekcie zieleni wyróżniają osiedle Wynalazek3A spośród innych ofert.
Dostępne mieszkania w tej inwestycji
| Nazwa | Rzut | Pokoje | Powierzchnia | Piętro | Cena | Status |