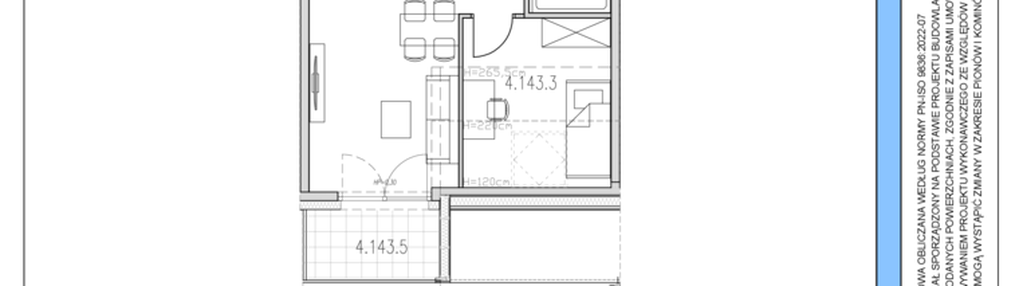
Nowe mieszkanie na sprzedaż 2 pokoje Wieliczka, 34,28 m2, 4 piętro - nr 143
Oferta sprzedaży od KG Group Sp. z o.o.
RezerwacjaWieliczka, ul. Świętej Barbary 16G

Główne cechy mieszkania
Ważne informacje
Mieszkanie 2 pokojowe
Dodatkowe informacje
Udogodnienia

Winda
Inwestycja
Osiedle Solne etap II
małopolskie, wielicki, Wieliczka
Osiedle Solne to nowoczesna inwestycja mieszkaniowa zlokalizowana na granicy Krakowa i Wieliczki. Nasza inwestycja znajduje się w sąsiedztwie domów jednorodzinnych i zabudowy szeregowej. Obecnie kończymy już budowę I etapu złożonego z dwóch nowoczesnych budynków i wkrótce rozpoczniemy sprzedaż kolejnego etapu, w którym znajdzie się ponad 180 mieszkań. II etap Osiedla Solnego to 3 nowocześnie zaprojektowane 4-kondygnacyjne segmenty, w których znajdzie się ponad 180 mieszkań o różnorodnych powierzchniach. Nasza inwestycja wyróżnia się elegancką architekturą, dopracowanym projektem terenów zielonych, świetną lokalizacją i przede wszystkim znakomitym stosunkiem jakości do ceny. W naszej ofercie znajdą się mieszkania od około 30 do 80 m2 z ogródkami, tarasami i balkonami. Projektując budynki zadbaliśmy o to, żeby każde mieszkanie było jak najbardziej funkcjonalne, ustawne i tworzyło komfortową przestrzeń do życia.
Dostępne mieszkania w tej inwestycji
| Nazwa | Rzut | Pokoje | Powierzchnia | Piętro | Cena | Status |