Nowe mieszkanie na sprzedaż 2 pokoje Wrocław Śródmieście, 41,63 m2, parter - nr D3.M6
Oferta sprzedaży od RealCo Property Investment and Development Sp. z o.o.
Wrocław, Śródmieście, Zalesie, al. Ludomira Różyckiego 1C (2,8km od centrum Wrocławia)

Główne cechy mieszkania
Ważne informacje
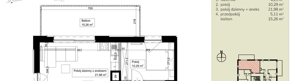
Mieszkanie 2 pokojowe
Dodatkowe informacje
Udogodnienia

Winda

Sala fitness

Rowerownia

Usługi w budynku

Plac zabaw

Klimatyzacja
Przyroda

Park
Inwestycja
Apartamenty przy Parku Szczytnickim
dolnośląskie, Wrocław, Śródmieście, Zalesie
Zamieszkaj w gotowych Apartamentach przy Parku Szczytnickim. To nowa inwestycja we Wrocławiu położona w atrakcyjnej okolicy Parku Szczytnickiego, która w grudniu 2024 roku otrzymała pozwolenie na użytkowanie. Do oferty trafiły 133 funkcjonalne mieszkania o zróżnicowanej powierzchni od 41 m2 do 126 m2. W ramach inwestycji powstało 10 budynków o niskiej zabudowie wyróżniających się nowoczesną architekturą – a klucze do nich możesz odebrać już dziś! Mieszkania zlokalizowane na parterze posiadają duże ogródki, a znajdujące się na wyższych piętrach balkony. W ofercie znalazły się również apartamenty z balkonami oraz przestronnymi tarasami na dachu. Apartamenty przy Parku Szczytnickim są gotowe do zamieszkania. To wymarzone miejsce, dla ceniących wysoką jakość i wygodę, a także poszukujących atrakcyjnego i bezpiecznego miejsca dla swojej rodziny. Stylowa i nowoczesna architektura, to efekt starannej pracy nad projektem, podczas której zadbano, aby każdy element tworzył spójną całość. Ekskluzywny charakter podkreślą wyselekcjonowane materiały, a jakość idzie w parze z najnowszymi trendami. Elewacje budynków wykonano z wysokiej jakości płytek klinkierowych w ciepłym odcieniu piaskowca. Połączenie wielkoformatowych spieków inspirowanych czarnym marmurem Calacatta i mosiężnych elementów wystroju części wspólnych, jest wyrazem elegancji i unikalności inwestycji. Odbierz klucze i zamieszkaj już dziś!
Dostępne mieszkania w tej inwestycji
| Nazwa | Rzut | Pokoje | Powierzchnia | Piętro | Cena | Status |