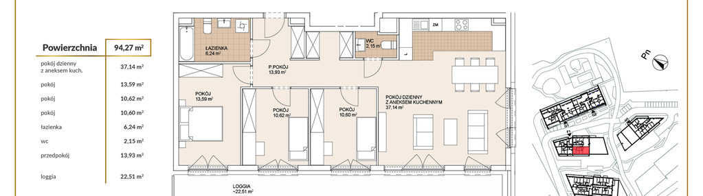
Nowe mieszkanie na sprzedaż 4 pokoje Wrocław Stare Miasto, 94,27 m2, 6 piętro - nr F1-6-56
Oferta sprzedaży od Lokum Deweloper
Wrocław, Stare Miasto, ul. Gnieźnieńska (2,5km od centrum Wrocławia)

Główne cechy mieszkania
Ważne informacje
Mieszkanie 4 pokojowe
Dodatkowe informacje
Udogodnienia

Winda

Usługi w budynku

Własny akwen wodny

Plac zabaw
Przyroda

Park
Inwestycja
Lokum Porto etap VI
dolnośląskie, Wrocław, Stare Miasto
LOKUM PORTO – TWOJA PRZYSTAŃ W SERCU WROCŁAWIA Osiedle Lokum Porto mieści się przy ul. Długiej/Gnieźnieńskiej, w sąsiedztwie Odry. To unikalne usytuowanie łączy bliskość tętniącego życiem centrum miasta z zielonymi terenami rekreacyjnymi biegnącymi wzdłuż rzeki. W ofercie znajdują się mieszkania gotowe do odbioru. ODKRYJ ATUTY LOKUM PORTO: • nowoczesne osiedle z placami zabaw, siłownią terenową • liczne zielone strefy rekreacyjne, alejki spacerowe, oczka wodne, lokale handlowo-usługowe • w zasięgu ręki sklepy, placówki edukacyjne i medyczne, tereny rekreacyjne oraz komunikacja zbiorowa • przystanek tramwajowy – tuż przy osiedlu W szerokiej ofercie osiedla dostępne są funkcjonalne mieszkania 1,2,3,4,5-pokojowe o zróżnicowanych układach. Do każdego przynależy balkon, loggia lub taras. Codzienny komfort zagwarantują komórki lokatorskie ułatwiające przechowywanie oraz miejsca postojowe umożliwiające wygodne parkowanie. Na terenie osiedla znajdują się lokale usługowe, dzięki którym wszystko, co potrzebne na co dzień, jest dostępne na wyciągnięcie ręki. ŚWIETNA LOKALIZACJA: Usytuowane na Starym Mieście Lokum Porto łączy w sobie zalety położenia nieopodal rzeki i terenów z dogodnym dostępem do rozbudowanej infrastruktury miejskiej. W pobliżu znajdują się m.in.: • zielone tereny rekreacyjne, np. Górka Szczepińska, Park Popowicki i Park Zachodni • liczne sklepy, punkty handlowo-usługowe • Centrum Handlowe Magnolia Park, kino Helios • przedszkola i szkoły • przystanki tramwajowe, autobusowe oraz kolejowe • Kaufland, Obi – 2 minuty samochodem • Magnolia Park – 7 minut samochodem • Górka Sczepińska – 3 minuty rowerem • Park Popowicki – 4 minuty rowerem Lokum Porto łączy w sobie uroki życia w sąsiedztwie natury z wygodą dostępu do miejskiej infrastruktury oraz atrakcji kulturalnych. To miejsce idealne dla osób ceniących zarówno spokój, jak i energię wielkomiejskiego życia.
Dostępne mieszkania w tej inwestycji
| Nazwa | Rzut | Pokoje | Powierzchnia | Piętro | Cena | Status |