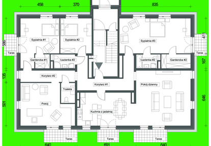
Nowe mieszkanie na sprzedaż 5 pokoi Wrocław Krzyki, 208,98 m2, parter - nr W2/M01/0P
Oferta sprzedaży od Platforma Mieszkaniowa
Wrocław, Krzyki, Brochów, ul. Indonezyjska (7,1km od centrum Wrocławia)

Główne cechy mieszkania
Ważne informacje
Mieszkanie 5 pokojowe
Dodatkowe informacje
Udogodnienia

Winda
Przyroda

Park
Inwestycja
Zielony Brochów 7 - etap A
dolnośląskie, Wrocław, Krzyki, Brochów
Nowoczesna architektura, szeroka oferta mieszkań Inwestycja Zielony Brochów 7 to osiedle trzyetapowe. Mieszkania usytuowane na parterze będą miały dostęp do tarasów i ogródków, natomiast na wyższych kondygnacjach znajdą się balkony. Przewidziano również miejsca dla osób zmotoryzowanych zlokalizowane zarówno w garażu podziemnym, jak i na terenie osiedla. Nowoczesna architektura, wysoka jakość materiałów Cichobieżne windy Naziemne i podziemne miejsca postojowe
Dostępne mieszkania w tej inwestycji
| Nazwa | Rzut | Pokoje | Powierzchnia | Piętro | Cena | Status |