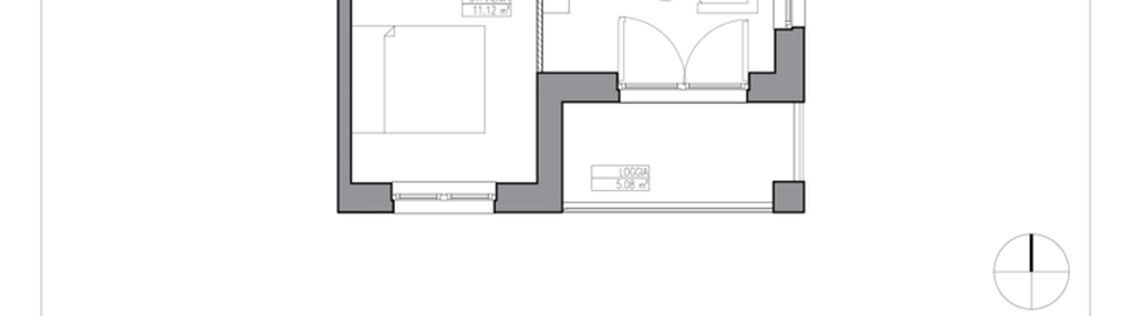
Nowe mieszkanie na sprzedaż 2 pokoje Wrocław Krzyki, 46,63 m2, 3 piętro - nr KR6/B/3/2
Oferta sprzedaży od ROBYG
Wrocław, Krzyki, Południe, ul. Krakowska (2,9km od centrum Wrocławia)

Główne cechy mieszkania
Ważne informacje
Mieszkanie 2 pokojowe
Dodatkowe informacje
Udogodnienia

Winda

Rowerownia

Inteligentny dom

Sala fitness
Przyroda

Park

Las
Inwestycja
Apartamenty Krakowska etap VI
dolnośląskie, Wrocław, Krzyki, Południe
Apartamenty Krakowska to osiedle realizowane we Wrocławskiej dzielnicy Krzyki, na terenach obejmujących historyczne zabudowania dawnego browaru E. Haasego. Obszar jest dobrze skomunikowany zarówno z centrum Wrocławia, jak i obwodnicą śródmiejską, a największym walorem lokalizacji jest bliskość rzeki Oławy i położonych nad nią terenów rekreacyjnych. Z myślą o potrzebach przyszłych mieszkańców zróżnicowaliśmy zabudowę - powstaną tu wielkomiejskie, wysokie budynki, nieco niższa zabudowa osiedlowa ze skwerami i parkami kieszeniowymi oraz położona najbliżej rzeki strefa kameralna z niską zabudową. Osiedle w sposób naturalny połączy bliskość Starego Miasta z możliwością oddechu od miejskiego zgiełku. Zastosujemy przyjazne środowisku rozwiązania ekologiczne oraz zadbamy o walory estetyczne wykorzystując materiały wysokiej jakości. Do użytku mieszkańców oddamy Strefę Fitness oraz Kącik Malucha. Każde mieszkanie bez dodatkowych opłat wyposażymy w system Smart House firmy Keemple pozwalający na efektywne gospodarowanie energią oraz kontrolę jej zużycia.
Dostępne mieszkania w tej inwestycji
| Nazwa | Rzut | Pokoje | Powierzchnia | Piętro | Cena | Status |