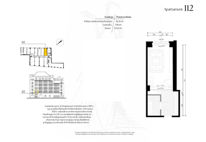
Nowe mieszkanie na sprzedaż 1 pokój Wrocław Stare Miasto, 30,12 m2, 1 piętro - nr G1/12 – 112
Oferta sprzedaży od Platforma Mieszkaniowa
Wrocław, Stare Miasto, ul. Krupnicza 6/8 (0,8km od centrum Wrocławia)

Główne cechy mieszkania
Ważne informacje
Mieszkanie 1 pokojowe
Dodatkowe informacje
Udogodnienia

Klimatyzacja

Winda
Inwestycja
Krupnicza 6/8
dolnośląskie, Wrocław, Stare Miasto
• Kameralna zabudowa - tylko 24 apartamenty • Winda panoramiczna prowadząca do obu pięter • Klimatyzacja we wspólnym systemie VRF • Możliwość instalacji antresoli w każdym apartamencie Modernistyczny budynek zbudowany w 1910 roku, zaprojektowany przez Richarda i Paula Erlichów, pierwotnie funkcjonował jako dom handlowy J. Z. Hamburger. Kompleksowa rewitalizacja zakłada wybudowanie 24 mieszkań i apartamentów, o powierzchni od 30 – 110 mkw, na dwóch kondygnacjach, przy zachowaniu oryginalnej fasady z okładziną z piaskowca oraz ozdobnymi płycinami w wykuszach okien.
Dostępne mieszkania w tej inwestycji
| Nazwa | Rzut | Pokoje | Powierzchnia | Piętro | Cena | Status |