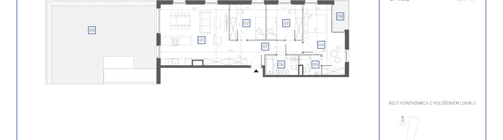
Nowe mieszkanie na sprzedaż 4 pokoje Wrocław Fabryczna, 87,65 m2, 3 piętro - nr 6.3.1
Oferta sprzedaży od Sagaris Constructions Sp. z o.o.
Wrocław, Fabryczna, Żerniki, ul. Maya (8,7km od centrum Wrocławia)

Główne cechy mieszkania
Ważne informacje
Mieszkanie 4 pokojowe
Dodatkowe informacje
Udogodnienia

Rowerownia

Plac zabaw

Usługi w budynku

Winda
Przyroda

Park
Inwestycja
Atria Nowe Żerniki
dolnośląskie, Wrocław, Fabryczna, Żerniki
Modelowe osiedle inspirowane osiedlem WuWa Nowe Żerniki będą modelowym osiedlem inspirowanym modernistycznym osiedlem WuWa. Koncepcja architektoniczna osiedla kładzie nacisk na tworzenie lokalnych wspólnot, wspierając integrację oraz rozwijanie więzi społecznych. W projekcie zaplanowano 172 funkcjonalnych mieszkań o metrażach od 30 m2 do 90 m2 z balkonami, tarasami i ogródkami. Osiedle będzie charakteryzowało się niską zabudową w układzie kaskadowym, obejmującą budynki o trzech i czterech piętrach. Całość utrzymana jest w przyjemnej kolorystyce, łączącej ciepłą biel i subtelne odcienie szarości, z delikatnymi lamelami w jasnym brązie, które nadają harmonijny charakter przestrzeni. Na parterze, od strony parku, zlokalizowane będą lokale usługowe, które tworzą przyjazne otoczenie, sprzyjające spotkaniom i integracji mieszkańców. Bezpieczny dom – wszędzie blisko, o krok od codziennych potrzeb Nasze osiedle to komfort i bezpieczeństwo w zorganizowanej przestrzeni. Położone w spokojnej okolicy, zaledwie kilka kroków od punktów usługowych, szkoły, szpitala oraz straży, oferuje pełne wsparcie dla codziennych potrzeb mieszkańców. W sercu osiedla znajdzie się świetlica, która stanie się miejscem spotkań i integracji, a pobliski skwer Shaurona zapewni przestrzeń do odpoczynku w otoczeniu zieleni. Dla miłośników aktywności na świeżym powietrzu przygotowaliśmy boisko do streetballa, trawiaste boisko oraz wybieg dla psów – wszystko, czego potrzeba do komfortowego życia w zasięgu ręki. Klasyczna architektura w nowoczesnym wydaniu Każdy szczegół inwestycji został starannie zaprojektowany. Zintegrowane z zielenią przestrzenie półprywatne i półpubliczne między budynkami to miejsca sprzyjające relaksowi i budowaniu sąsiedzkich relacji. Przydomowe ogródki na parterze w każdym budynku oferują dodatkową, prywatną przestrzeń na świeżym powietrzu. Zielone dachy z dużymi tarasami w budynkach 4-kondygnacyjnych od strony wschodniej to wartość dodana dla mieszkańców ostatnich kondygnacji. Ciepłe kolory elewacji, takie jak delikatna złamana biel i elementy w odcieniu RAL 1019, dodają elegancji i wyjątkowego charakteru. Kameralna zabudowa sprzyja poczuciu intymności, jednocześnie zachowując otwartość na potrzeby społeczności. Lokale usługowe na osiedlu Atria – Twoje miejsce na biznes W północno-wschodnim narożniku osiedla Atria na Nowych Żernikach znajdziesz przestrzenie idealne do prowadzenia działalności usługowej. Dzięki starannemu projektowi oferują one maksymalną elastyczność i nowoczesny wygląd. Słupowy układ konstrukcji pozwala na dowolną aranżację wnętrza, dostosowaną do potrzeb Twojej działalności. Duże, szklane witryny zapewniają doskonałą ekspozycję i naturalne doświetlenie, przyciągając uwagę potencjalnych klientów. Lokalizacja w narożniku osiedla gwarantuje wygodny dostęp i zwiększoną widoczność. Dlaczego warto wybrać Atrię? Atria wyróżnia się doskonałym położeniem, które zapewnia łatwy dostęp do komunikacji miejskiej, trasy A8 oraz najważniejszych punktów miasta. W pobliżu znajdują się stadion miejski, szkoły, sklepy i placówki medyczne, co gwarantuje mieszkańcom pełen komfort codziennego życia. W centralnym punkcie znajduje się Skwer Scharouna – przestrzeń inspirowana ideami znanego architekta, stworzona z myślą o mieszkańcach. Nowe place zabaw dla dzieci, boisko, tor do gry w bule, ścieżki, leżaki i ławki juz cieszą oko mieszkańców. Powstanie również boisko do koszykówki, ścianka wspinaczkowa, street workout oraz jeszcze więcej małej architektury i zieleni przy nasadzeniu której współuczestniczymy jako inwestor.
Dostępne mieszkania w tej inwestycji
| Nazwa | Rzut | Pokoje | Powierzchnia | Piętro | Cena | Status |