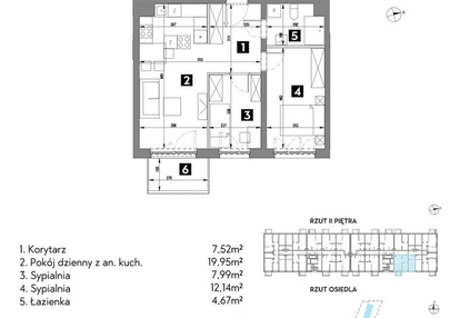
Nowe mieszkanie na sprzedaż 3 pokoje Wrocław Fabryczna, 52,11 m2, 2 piętro - nr A2/2/11
Oferta sprzedaży od Platforma Mieszkaniowa
Wrocław, Fabryczna, Muchobór Mały, ul. Nowodworska (5,2km od centrum Wrocławia)

Główne cechy mieszkania
Ważne informacje
Mieszkanie 3 pokojowe
Dodatkowe informacje
Udogodnienia

Usługi w budynku
Inwestycja
Metr Kwadrat
dolnośląskie, Wrocław, Fabryczna, Muchobór Mały
Osiedle Metr Kwadrat powstaje w północnej części Nowego Dworu we Wrocławiu. Mieszkania położone przy ul. Nowodworskiej będą doskonałym wyborem zarówno dla młodych poszukujących pierwszego lokum, jak i rodzin, które cenią sobie funkcjonalność i wygodę. Projekt tej inwestycji tworzyliśmy w szczególności z myślą o potrzebach i wymaganiach wrocławian, którzy chcą być częścią dużego, prężnie rozwijającego się miasta, a jednocześnie zapewnić sobie przestrzeń na własne potrzeby i komfortowy odpoczynek. To osiedle kompletne, samowystarczalne, z pełną infrastrukturą handlowo-usługową, a do tego świetnie skomunikowane.
Dostępne mieszkania w tej inwestycji
| Nazwa | Rzut | Pokoje | Powierzchnia | Piętro | Cena | Status |