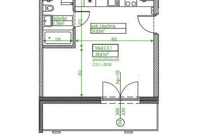
Nowe mieszkanie na sprzedaż 1 pokój Wrocław Krzyki, 28,56 m2, 1 piętro - nr C.II.1
Oferta sprzedaży od INTER-ES Deweloper
Wrocław, Krzyki, Księże Wielkie, ul. Opolska 86-92 (5km od centrum Wrocławia)

Główne cechy mieszkania
Ważne informacje
Mieszkanie 1 pokojowe
Dodatkowe informacje
Udogodnienia

Rowerownia

Winda

Wózkarnia
Inwestycja
Osiedle Opolska
dolnośląskie, Wrocław, Krzyki, Księże Wielkie
Zapraszamy do zapoznania się z ofertą wyjątkowych mieszkań, które powstają w dynamicznie rozwijającej się części Wrocławia przy ul. Opolskiej 86-92. To idealne miejsce zarówno dla osób szukających nowego lokum, jak i inwestorów, którzy chcą zainwestować w nieruchomości na rynku wschodzącym. Nasza inwestycja to nowoczesny kompleks mieszkalny, zaprojektowany z myślą o najwyższym komforcie mieszkańców. Oferujemy szeroki wybór mieszkań – od przytulnych kawalerek, idealnych dla singli lub par, po przestronne, wielopokojowe apartamenty doskonałe dla rodzin z dziećmi. Każde z mieszkań cechuje wysoki standard oraz funkcjonalny rozkład pomieszczeń, który umożliwia łatwą aranżację przestrzeni według własnych potrzeb. Inwestycja znajduje się w dogodnej lokalizacji, zapewniając szybki dostęp do centrum miasta oraz najważniejszych arterii komunikacyjnych. W okolicy znajdują się liczne sklepy, szkoły, przedszkola oraz tereny zielone, co sprawia, że jest to doskonałe miejsce do życia dla osób ceniących sobie bliskość udogodnień miejskich, jak i kontakt z naturą. Zakończenie inwestycji jest planowane w pierwszym kwartale 2027 roku. Wszystkie mieszkania zlokalizowane na parterze będą dysponowały bezpośrednim dostępem do terenów zielonych (ogródków) przeznaczonych do wyłącznego korzystania o powierzchni od 24 do 155 mkw. Dwa wyjątkowe lokale dwupoziomowe znajdujące się w bramie D posiadają tarasy na drugiej kondygnacji mieszkań o powierzchniach 20 i 25 mkw. W budynku znajdują się cztery klatki schodowe z dostępem do windy, trzy z nich prowadzą bezpośrednio do garażu podziemnego gdzie zlokalizowane będą miejsca parkingowe, komórki lokatorskie oraz rowerownia i wózkowania. Od zewnątrz bezpośrednio od ulicy Opolskiej będą dodatkowo indywidualne , zamykane miejsca garażowe jedno i dwustanowiskowe. W bezpośrednim sąsiedztwie inwestycji – około 50 m - znajduje się przystanek tramwajowy linii 3 oraz 5, przystanki autobusowe obsługujący linie 100,124, 134 oraz 243.
Dostępne mieszkania w tej inwestycji
| Nazwa | Rzut | Pokoje | Powierzchnia | Piętro | Cena | Status |