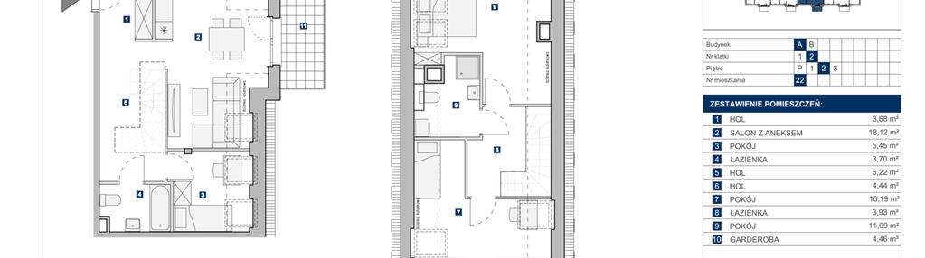
Nowe mieszkanie na sprzedaż 4 pokoje Wrocław Psie Pole, 72,18 m2, 2 piętro - nr A.22
Oferta sprzedaży od Dom Development S.A.
Wrocław, Psie Pole, Osobowice, ul. Osobowicka 114 (5,1km od centrum Wrocławia)

Główne cechy mieszkania
Ważne informacje
Mieszkanie 4 pokojowe
Dodatkowe informacje
Udogodnienia

Plac zabaw

Patio / Dziedziniec

Inteligentny dom
Przyroda

Rzeka

Las
Inwestycja
Osobowicka 114
dolnośląskie, Wrocław, Psie Pole, Osobowice
Osobowicka 114 to unikalny projekt Dom Development łączący historię z nowoczesnością. Ta wyjątkowa inwestycja zlokalizowana jest na Osobowicach - kameralnej, zielonej, a jednocześnie dobrze skomunikowanej z centrum części Wrocławia. Otoczenie przyrody, bliskość Odry i terenów rekreacyjnych zapewnią ciszę i spokój przyszłym mieszkańcom. Doskonała lokalizacja Położenie inwestycji Osobowicka 114 oferuje szereg korzyści: - dojazd w kilkanaście minut do centrum miasta, - Zespół Szkolno-Przedszkolny w najbliższym sąsiedztwie, - przystanek autobudowy tuż przy inwestycji, - zaledwie 600m do pętli tramwajowej, - popularne tereny zielone w okolicy: Las Osobowicki, wały nad Odrą, ścieżki spacerowo-rowerowe. Atuty otoczenia Osobowice to jedna z piękniejszych części Wrocławia, z dużą ilością zieleni, sąsiedztwem Odry i niską zabudową. Jednocześnie to doskonałe miejsce dla ceniących wszystkie wygody miasta. Niewątpliwym atutem lokalizacji jest doskonała komunikacja. Tuż przy inwestycji znajduje się przystanek autobusowy, a do pętli tramwajowej jest zaledwie 600m. Dodatkowo liczne sklepy, przedszkola i szkoły gwarantują wygodę dla rodzin z dziećmi – najbliższy Zespół Szkolno-Przedszkolny znajduje się po drugiej stronie ulicy. Tradycja i nowoczesność Osobowicka 114 zlokalizowana jest na terenie dawnego Folwarku. Inwestycję tworzą dwa kameralne budynki z dziedzińcem, na którym zaplanowano plac zabaw. Jeden z nich, bryłą nawiązujący do historycznej zabudowy, wyróżnia się nowoczesnymi elementami architektury. Drugi to współczesny, pełen przeszkleń budynek z tarasami, dużymi balkonami i ogródkami. Dwie różne formy tworzą jednolitą, niezwykłą przestrzeń łączącą tradycję z nowoczesnością. Funkcjonalność i wygoda Osobowicka 114 oferuje 80 mieszkań od 1- do 4-pokojowych, o najbardziej poszukiwanych metrażach, od 26 do 97 m2. Większość mieszkań będzie posiadać balkony, tarasy lub loggie, a część zlokalizowanych na parterze – przestronne ogródki. Do dyspozycji mieszkańców zaprojektowaliśmy również wewnętrzny dziedziniec z drzewami, ogrodami kwietnymi i placem zabaw.
Dostępne mieszkania w tej inwestycji
| Nazwa | Rzut | Pokoje | Powierzchnia | Piętro | Cena | Status |