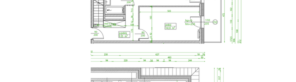
Nowe mieszkanie na sprzedaż 4 pokoje Wrocław Psie Pole, 88,17 m2, 2 piętro - nr D.III.1
Oferta sprzedaży od INTER-ES Deweloper
Wrocław, Psie Pole, Różanka, ul. Osobowicka 45 (3,2km od centrum Wrocławia)

Główne cechy mieszkania
Ważne informacje
Mieszkanie 4 pokojowe
Dodatkowe informacje
Udogodnienia

Wózkarnia

Rowerownia

Plac zabaw
Przyroda

Park
Inwestycja
Villa Rosenthal
dolnośląskie, Wrocław, Psie Pole, Różanka
Mamy ogromną przyjemność ogłosić, że długi okres oczekiwania dobiegł końca i jesteśmy gotowi podzielić się z Wami wyjątkową inwestycją mieszkaniową we Wrocławiu! Jest to moment, na który wielu z Was czekało, i chcielibyśmy podziękować Wam za cierpliwość i wytrwałość. Nasza nowa inwestycja mieszkaniowa to prawdziwa perełka na mapie Wrocławia. Położona w prestiżowej dzielnicy, z doskonałym dostępem do wszystkich ważnych udogodnień, ta inwestycja z pewnością spełni Wasze marzenia o wymarzonym mieszkaniu. W centrum Wrocławia oraz malowniczych okolicach parku oraz rzeki Odry powstaje kameralne osiedle Villa Rosenthal. Lokalizacja inwestycji łączy cechy mieszkania w spokojnej, zielonej okolicy z dostępem do pełnej infrastruktury miejskiej. Budowa inwestycji rozpoczęła się w II kwartale 2023 roku, a zakończenie planowane jest na I kwartał 2026 r. Nowoczesna architektura inspirowana willową zabudową wyróżnia się prostymi bryłami. Duże przeszklenia, jasna elewacja z subtelnymi zdobieniami drewnianymi wpływają na atrakcyjność inwestycji. Zwarta roślinność otaczająca osiedle stworzy wyjątkowo przyjazny, kameralny klimat, a o bezpieczeństwo mieszkańców zadba system monitoringu. W ofercie dostępne są mieszkania zlokalizowane w niskiej dwupiętrowej zabudowie, łącznie na terenie inwestycji znajdują się cztery budynki. Powierzchnie rozpoczynają się od 30 metrów kwadratowych kończąc na dwupoziomowych 90-cio metrowych na ostatniej kondygnacji wraz z antresolą. Przestrzeń została zaprojektowana z myślą o rodzinach, pozostawiając możliwość indywidualnej aranżacji wnętrz. Wszystkie mieszkania zlokalizowane na parterze będą dysponowały bezpośrednim dostępem do terenów zielonych (ogródków) przeznaczonych do wyłącznego korzystania. Każdy budynek posiada jedną klatkę schodową, która prowadzi bezpośrednio do garażu podziemnego gdzie zlokalizowane będą miejsca parkingowe, komórki lokatorskie oraz rowerownia i wózkowania. Budynki nie posiadają wind, będzie ona zlokalizowana na zewnątrz i umożliwiała osobom niepełnosprawnym oraz korzystającym z wózków dla dzieci dostęp do garażu podziemnego. Villa Rosenthal powstaje w cichej, zielonej części Wrocławia. Lokalizacja w dzielnicy Różanka sprzyja aktywnemu wypoczynkowi i rekreacji. Miłośnicy joggingu i wycieczek rowerowych odkryją tu przestrzeń do rekreacji, a spragnieni równowagi i odpoczynku – odetchną od gwaru miasta. Stąd niedaleko jest do Śródmieścia, dojazd tramwajem do rynku zajmuje niecałe 10 minut. W bezpośrednim sąsiedztwie inwestycji – około 25 m - znajduje się przystanek tramwajowy i autobusowy obsługujący linie 14, 129, 142 oraz K.
Dostępne mieszkania w tej inwestycji
| Nazwa | Rzut | Pokoje | Powierzchnia | Piętro | Cena | Status |