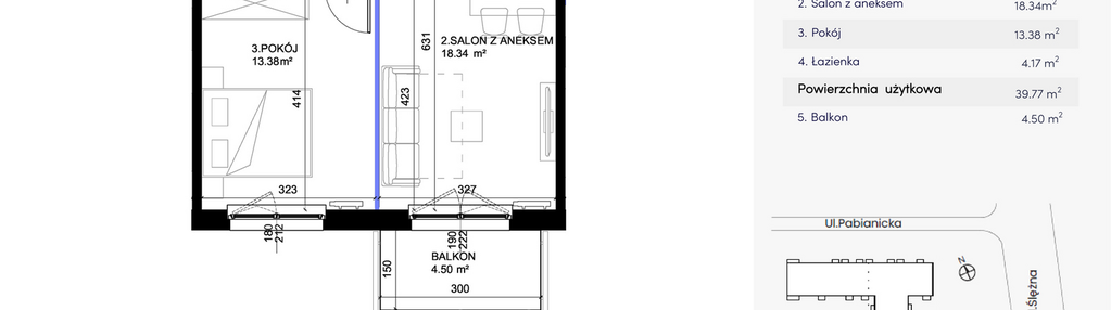
Nowe mieszkanie na sprzedaż 2 pokoje Wrocław Krzyki, 39,77 m2, 5 piętro - nr 05.C.45
Oferta sprzedaży od RealCo Property Investment and Development Sp. z o.o.
RezerwacjaWrocław, Krzyki, Południe, ul. Pabianicka 25 (1,9km od centrum Wrocławia)

Główne cechy mieszkania
Ważne informacje
Mieszkanie 2 pokojowe
Dodatkowe informacje
Udogodnienia

Winda

Rowerownia
Inwestycja
Nowa Pabianicka
dolnośląskie, Wrocław, Krzyki, Południe
Nowa Pabianicka to unikalne miejsce we Wrocławiu, położone w otoczeniu najważniejszych punktów na mapie. Inwestycja stworzona dla osób, które pragną korzystać z uroków dużego miasta. Idealnie skomunikowana lokalizacja umożliwia przemieszczanie się bez konieczności wsiadania do samochodu. W pobliżu znajdują się liczne placówki edukacyjne, uczelnie wyższe i biurowce. W zaledwie 10 minut można dojść AquaParku, galerii handlowych i Dworca Głównego. Inwestycję, realizowaną przez RealCo Property Investment and Development, tworzą 194 mieszkania położone w budynku składającego się z dwóch części – o 5 i 11 kondygnacjach, optymalnie wkomponowanych w okolicę otoczenia. Z myślą o zróżnicowanych potrzebach naszych mieszkańców oferujemy przemyślane przestrzenie mieszkalne, które harmonijnie łączą funkcjonalność z elegancją. Nowa Pabianicka to świetna propozycja dla singli, par i rodzin, które stawiają na wygodę i niezależność w życiu codziennym. W naszej inwestycji mieszkania zostaną wyposażone w drzwi wejściowe o zwiększonej wytrzymałości antywłamaniowej, co zapewni lokatorom dodatkowe bezpieczeństwo. Balkony będą posiadały antypoślizgową nawierzchnię i estetyczne, przeszklone balustrady. Dla komfortu mieszkańców zaplanowano garaż podziemny, a miłośnicy jednośladów będą mieli do użytku dwie rowerownie. Elegancka recepcja umiejscowiona w centralnej części holu podniesie codzienny komfort użytkowania przestrzeni mieszkalnej. Standard i bezpieczeństwo: - winda - 2 rowerownie - wykończone antypoślizgowo balkony z przeszklonymi balustradami - drzwi wejściowe do mieszkań o zwiększonej odporności na włamanie - recepcja w głównym holu Instalacje i energetyka - oświetlenie zewnętrzne LED z czujką zmierzchową Przyroda w okolicy - 2 parki
Dostępne mieszkania w tej inwestycji
| Nazwa | Rzut | Pokoje | Powierzchnia | Piętro | Cena | Status |