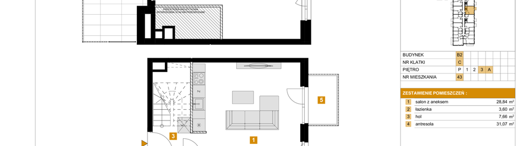
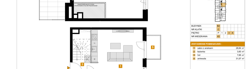
Nowe mieszkanie na sprzedaż 2 pokoje Wrocław Psie Pole, 71,17 m2, 3 piętro - nr 43
Oferta sprzedaży od Dom Development S.A.
Wrocław, Psie Pole, Poświętne, ul. Ramiszewska 6 (5,2km od centrum Wrocławia)

Główne cechy mieszkania
Ważne informacje
Mieszkanie 2 pokojowe
Dodatkowe informacje
Udogodnienia

Winda

Inteligentny dom

Usługi w budynku

Plac zabaw
Przyroda

Park
Inwestycja
Osiedle Arkadia
dolnośląskie, Wrocław, Psie Pole, Poświętne
WITAJ W ARKADII Zapraszamy do Arkadii – nowego osiedla mieszkaniowego zlokalizowanego w zielonej i kameralnej części Wrocławia – Poświętne. Inwestycję zaprojektowano w duchu 15-minutowego miasta – tu wszystkie codzienne potrzeby zrealizujesz w zasięgu krótkiego spaceru lub przejażdżki rowerem. To połączenie spokoju, natury i wygodnej przestrzeni miejskiej.
Dostępne mieszkania w tej inwestycji
| Nazwa | Rzut | Pokoje | Powierzchnia | Piętro | Cena | Status |