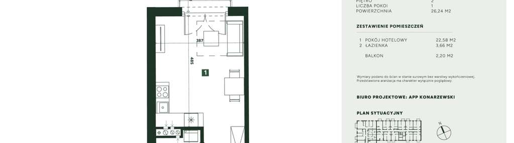
Nowe mieszkanie na sprzedaż 1 pokój Wrocław Fabryczna, 26,24 m2, 2 piętro - nr C.3.10
Oferta sprzedaży od Lewante Sp. z o.o.
Inwestycja ograniczonaWrocław, Fabryczna, Żerniki, ul. Starachowicka 15 (8,8km od centrum Wrocławia)

Główne cechy mieszkania
Ważne informacje
Mieszkanie 1 pokojowe
Dodatkowe informacje
Udogodnienia

Rowerownia

Winda
Przyroda

Park
Inwestycja
Dostępne mieszkania w tej inwestycji
| Nazwa | Rzut | Pokoje | Powierzchnia | Piętro | Cena | Status |