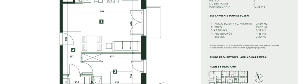
Nowe mieszkanie na sprzedaż 2 pokoje Wrocław Fabryczna, 42,35 m2, 2 piętro - nr B.3.5
Oferta sprzedaży od Lewante Sp. z o.o.
RezerwacjaWrocław, Fabryczna, Żerniki, ul. Starachowicka 15 (8,8km od centrum Wrocławia)

Główne cechy mieszkania
Ważne informacje
Mieszkanie 2 pokojowe
Dodatkowe informacje
Udogodnienia

Winda

Rowerownia
Przyroda

Park
Inwestycja
IVY HOUSE
dolnośląskie, Wrocław, Fabryczna, Żerniki
Elegancja połączona z zielenią Apartamenty Ivy House to przestrzeń, gdzie natura wkracza w codzienne życie, tworząc wyjątkową atmosferę harmonii. Dzięki elewacjom porośniętym bluszczem oraz przemyślanym ogrodom, mieszkańcy mogą cieszyć się prywatnym kontaktem z naturą, nie rezygnując z nowoczesnych udogodnień. Ivy House to inwestycja, która łączy spokój naturalnego otoczenia z łatwym dostępem do miejskich udogodnień. Zaledwie 20 minut od tętniącego życiem centrum Wrocławia, mieszkańcy mogą cieszyć się bliskością restauracji, sklepów i miejsc rozrywki, a jednocześnie odpoczywać w zaciszu zielonych terenów osiedla. Doskonała infrastruktura komunikacyjna umożliwia szybki i wygodny dostęp do każdej części miasta, a bliskość przystanków autobusowych oraz tramwajowych sprawia, że podróżowanie staje się wyjątkowo komfortowe. Przestronne wnętrza, wysokiej jakości materiały wykończeniowe oraz panoramiczne okna sprawiają, że przestrzeń ta staje się idealnym miejscem do życia dla osób ceniących sobie styl, wygodę i bliskość natury. Wybierając mieszkanie w Ivy House, wybierasz więcej niż tylko miejsce do życia – wybierasz przestrzeń, która łączy naturę, nowoczesność i wygodę. To idealne rozwiązanie dla osób, które cenią sobie estetykę, harmonię i komfort w jednym.
Dostępne mieszkania w tej inwestycji
| Nazwa | Rzut | Pokoje | Powierzchnia | Piętro | Cena | Status |