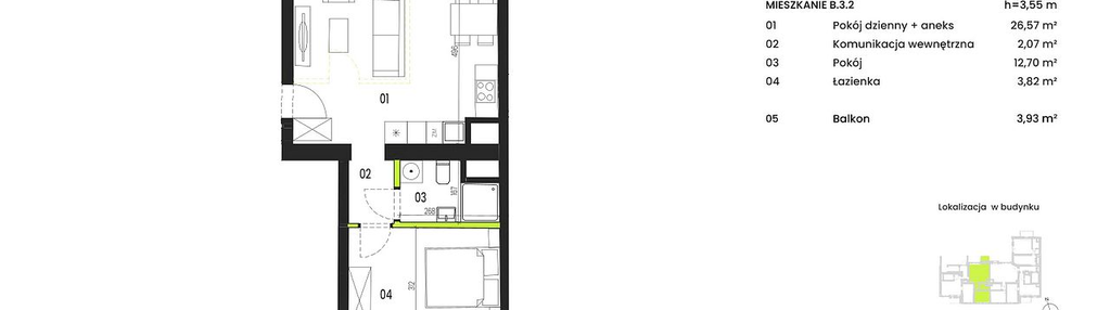
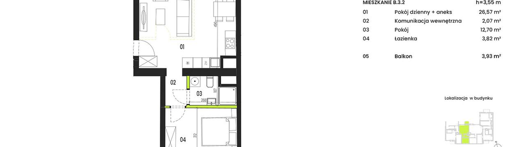
Nowe mieszkanie na sprzedaż 2 pokoje Wrocław Stare Miasto, 45,16 m2, 3 piętro - nr B.3.2
Oferta sprzedaży od Platforma Mieszkaniowa
Wrocław, Stare Miasto, ul. Stawowa 10 (0,7km od centrum Wrocławia)

Główne cechy mieszkania
Ważne informacje
Mieszkanie 2 pokojowe
Dodatkowe informacje
Udogodnienia

Winda

Rowerownia

Inteligentny dom
Inwestycja
Ogrody Staromiejskie
dolnośląskie, Wrocław, Stare Miasto
Z dumą prezentujemy nową inwestycję - Ogrody Staromiejskie. Harmonijnie wkomponowana w historyczną tkankę miejską Wrocławia, inwestycja składa się z 3. budynków w kwartale ulic Stawowej, Kościuszki, Kołłątaja i Rejtana. Jeden z nich to rewitalizowana kamienica, a pozostałe dwa to budynki nowe. Łącznie inwestycja obejmuje 66 lokali. Lokalizacja inwestycji pozwoli przyszłym mieszkańcom aktywnie uczestniczyć w życiu miasta. Spacerem dotrzesz do kluczowych punktów Wrocławia: • Dworzec PKP – 400 m; • Dworzec PKS – 700 m; • Centrum handlowe „Wroclavia” – 600 m; • Rynek Wrocławski - 1500 m; • Park Staromiejski – 800 m; Udogodnienia lokalizacyjne to jednak nie wszystko! Mieszkańcy Ogrodów Staromiejskich będą mogli cieszyć się zaplanowanymi na terenie inwestycji ogrodami miejskimi. W kompleksie powstaną zielone dziedzińce z miejscami do odpoczynku dla mieszkańców oraz multisensoryczny placyk zabaw dla dzieci. W projektowaniu zieleni przewidziano wykorzystanie rodzimych gatunków roślin. W ofercie dostępne są lokale z wyodrębnionymi ogródkami do wyłącznego korzystania, a także lokale z tarasami na dachu. Prezentujemy wyjątkowy apartament na sprzedaż Apartamenty w inwestycji Ogrody Staromiejskie to także: • niezwykła przestrzeń, dzięki ponadstandardowej wysokości lokali • bezpieczeństwo, które zapewnią drzwi antywłamaniowe i monitoring • komfortowe udogodnienia dla mieszkańców, takie jak pomieszczenie do przechowywania rowerów, stojaki oraz miejsce do mycia jednośladów. Zapraszamy do kontaktu w celu poznania szczegółów.
Dostępne mieszkania w tej inwestycji
| Nazwa | Rzut | Pokoje | Powierzchnia | Piętro | Cena | Status |