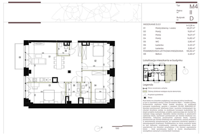
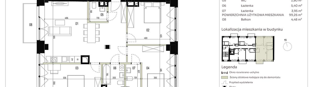
Nowe mieszkanie na sprzedaż 4 pokoje Wrocław Stare Miasto, 99,26 m2, 2 piętro - nr D.2.3
Oferta sprzedaży od Platforma Mieszkaniowa
Wrocław, Stare Miasto, ul. Stawowa 10 (0,7km od centrum Wrocławia)

Główne cechy mieszkania
Ważne informacje
Mieszkanie 4 pokojowe
Dodatkowe informacje
Udogodnienia

Rowerownia

Winda

Inteligentny dom

Plac zabaw
Inwestycja
Nowa Stawowa
dolnośląskie, Wrocław, Stare Miasto
Zapraszamy do zapoznania się z wyjątkową ofertą loftowych apartamentów w inwestycji Nowa Stawowa. Projekt zlokalizowany w tętniącym życiem centrum Wrocławia, idealnie wpisuje się w założenia idei miasta 15-minutowego. Nowa Stawowa to odpowiedź na oczekiwania wymagających mieszkańców Wrocławia: - 44 apartamenty o loftowym charakterze - powierzchnia od 27 do 132 mkw. - wysokość apartamentów nawet do 3,5 m - duże, panoramiczne okna - przynależne do lokali na najwyższych piętrach tarasy na dachu z widokiem na panoramę miasta - ogródki przynależne do mieszkań na parterze Dla wygody mieszkańców w inwestycji przewidziano także: - miejsca postojowe - pomieszczenie do przechowywania rowerów - stojaki oraz miejsce do mycia jednośladów Perfekcyjna lokalizacja: Inwestycja Nowa Stawowa obejmuje kompleksową rewitalizację dwóch kamienic położonych przy ul. Stawowej we Wrocławiu: - 10 minut do Parku Staromiejskiego - 12 minut do Rynku - 15 minut do Opery Wrocławskiej - blisko szkół, sklepów, restauracji - z łatwym dostępem do rozbudowanej sieci transportu publicznego i szerokiej oferty kulturalnej miasta Zielone otoczenie inwestycji: Projekt Nowej Stawowej zakłada nowoczesne ekologiczne rozwiązania, a całe przedsięwzięcie powstaje w zgodzie z ideą zrównoważonego rozwoju. W kompleksie zaplanowano: - ogród miejski z miejscami do odpoczynku dla mieszkańców - multisensoryczny placyk zabaw dla dzieci - ogródki warzywne W projektowaniu otoczenia inwestycji przewidziano wykorzystanie rodzimych gatunków roślin, które będą wsparciem dla lokalnego ekosystemu. Architektura dla wymagających: Koncepcja inwestycji łączy w sobie historię z nowoczesnością, nadając jej unikalnego charakteru. Projekt inwestycji: Pracownię Łapacz Winkowski Architekci Projekt zieleni: Pracownia IKropka Lobby i części wspólne: artysta i scenograf Boris Kudlicka
Dostępne mieszkania w tej inwestycji
| Nazwa | Rzut | Pokoje | Powierzchnia | Piętro | Cena | Status |