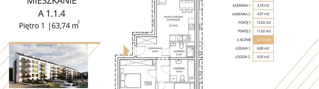
Nowe mieszkanie na sprzedaż 3 pokoje Zgierz, 63,74 m2, 1 piętro - nr A1.1.4
Oferta sprzedaży od Madey Development sp. z o.o. 3 sp.k.
Zgierz, ul. Orla 12

Główne cechy mieszkania
Ważne informacje
Mieszkanie 3 pokojowe
Dodatkowe informacje
Udogodnienia

Plac zabaw

Usługi w budynku

Winda
Przyroda

Las

Park
Inwestycja
Apartamenty Nowe Miasto
łódzkie, zgierski, Zgierz
Osiedle będzie składać się z dwóch bloków. W granicach zamkniętego i monitorowanego osiedla powstanie wspólny plac zabaw. Każde mieszkanie będzie posiadać balkon, taras lub loggie, a do lokali parterowych zaprojektowano ogródki. W ofercie znajdą się mieszkania 1-, 2 – 3- i 4-pokojowe w metrażu od 29 do 78 m2. Na każdej kondygnacji mieszkalnej zaprojektowano murowane komórki lokatorskie, a w halach parkingowych przewidziano kilkadziesiąt miejsc postojowych. W obu budynkach przewidziano nowoczesne i cichobieżne windy.
Dostępne mieszkania w tej inwestycji
| Nazwa | Rzut | Pokoje | Powierzchnia | Piętro | Cena | Status |