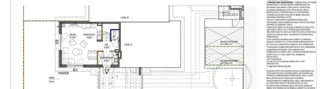
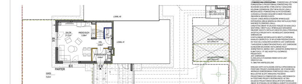
Nowy dom na sprzedaż 4 pokoje Falenty Nowe, 107,74 m2 - nr 21.S42
Oferta sprzedaży od Ronson Development Sp. z o.o.
pruszkowski, Falenty Nowe, ul. Droga Hrabska 11

Główne cechy domu
Ważne informacje
Dom i działka
Dodatkowe informacje
Udogodnienia

Boisko

Własne ujęcie wody

Własna kotłownia

Plac zabaw
Przyroda

Rezerwat przyrody

Las

Staw

Rzeka
Inwestycja
Nowe Falenty
mazowieckie, pruszkowski, Falenty Nowe
Eko Falenty to osiedle 266 energooszczędnych mini domów, które - mimo ekonomicznych metraży - kryją w sobie nowoczesne i ekologiczne rozwiązania. Budujemy w zgodzie z naturą! Zobacz, jakie innowacje możesz znaleźć w naszych domach: - odprowadzanie wód opadowych i roztopowych z każdej działki, - rekuperacja w każdym domu, - możliwość samodzielnego montażu fotowoltaiki W I etapie budowy powstaną 42 nowoczesne domy o zróżnicowanych metrażach – od 75,75 do 139,76 m2. Każdy z nich będzie posiadał duży ogród, gdzie będzie można odpocząć wśród zieleni, na świeżym powietrzu. Przez całe osiedle przebiegać będzie zielony Eko Pasaż, z nieregularną roślinnością, ławkami oraz elementami placu zabaw. To idealne miejsce na spacer i odpoczynek na łonie natury tuż obok domu! Eko Pasażem dojdziemy do ogromnego terenu rekreacyjnego z rzeką Raszynką. Będzie to miejsce, gdzie znajdą się boiska i place zabaw. To doskonała przestrzeń do integracji i wspólnej zabawy zarówno dzieci, jak i dorosłych. Falenty to spokojna okolica, pełna zieleni, ale jednocześnie położona nieopodal Alei Krakowskiej, którą błyskawicznie dostaniesz się do centrum Warszawy lub do CH Janki na zakupy. W pobliżu znajduje się nowoczesny kompleks szkolno-oświatowy w Ładach, w którym znajduje się szkoła podstawowa oraz przedszkole. Odetchnąć wśród zieleni możesz w pobliżu własnego domu lub w pobliskim rezerwacie przyrody Stawy Raszyńskie, w Lasach Sękocińskich lub Ogrodzie Botanicznym PAN w Powsinie. Stwórz z nami swoją zieloną ostoję pod Warszawą!
Dostępne domy w tej inwestycji
| Nazwa | Rzut | Pokoje | Powierzchnia | Piętra | Cena | Status |