Nowy dom na sprzedaż 6 pokoi Kraków Dębniki, 147,09 m2, działka 457 m2 - nr C1
Oferta sprzedaży od I Confisio Gładki Sp. K.
RezerwacjaKraków, Dębniki, ul. gen. Jana Karcza (8,1km od centrum Krakowa)

Główne cechy domu
Ważne informacje
Dom i działka
Inwestycja
Dom na zielonym uroczysku
małopolskie, Kraków, Dębniki
Zespół ośmiu kameralnych budynków jednorodzinnych w zabudowie bliźniaczej w bezpośrednim sąsiedztwie zielonych terenów Krakowa. Kameralne ogródki z widokiem na otaczającą zieleń, zielone tarasy, duże panoramiczne okna łączące przestrzeń wewnętrzną z zielonym otoczeniem - to niewątpliwe zalety zabudowy.
Dostępne domy w tej inwestycji
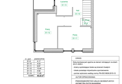
| Nazwa | Rzut | Pokoje | Powierzchnia | Piętra | Cena | Status |