Nowy dom na sprzedaż 5 pokoi Marki, 118,64 m2 - nr 28/1
Oferta sprzedaży od Ryńscy Development Sp. z o.o.
Marki, ul. Wołyńska 28

Główne cechy domu
Ważne informacje
Dom i działka
Dodatkowe informacje
Udogodnienia

Własny akwen wodny
Przyroda

Park
Inwestycja
Osiedle Skrzetuskiego II
mazowieckie, wołomiński, Marki
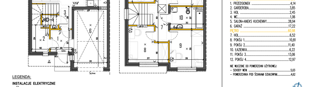
Osiedle Skrzetuskiego II zlokalizowane jest w Markach u zbiegu ulic Skrzetuskiego i Wołyńskiej. To spokojna, bezpieczna oraz pełna zieleni okolica, która zapewnia bardzo komfortowe warunki do życia. Blisko zarówno do atrakcyjnych terenów rekreacyjnych, jak i pełnej infrastruktury stolicy. Do centrum Warszawy można dotrzeć samochodem w ok. 15 min. Podróżowanie po całym regionie ułatwia znajdujący się kilkaset metrów od inwestycji wjazd na drogę ekspresową S8 – dzięki doskonale skomunikowanej okolicy można oszczędzić czas m.in. na dojazdach do pracy. Niedaleko również do wspomnianych miejsc rekreacji. Las Bródnowski to tylko 20 min pieszo. W pobliżu inwestycji przebiega także ścieżka rowerowa. Infrastruktura gwarantująca komfort Bliskość terenów zielonych oraz wygodny dojazd do Warszawy to nie jedyne atuty lokalizacji Osiedla Skrzetuskiego II. Bardzo dużą zaletą położenia inwestycji jest również wygodny dostęp do niezbędnych na co dzień miejsc. Kilkaset metrów od inwestycji znajduje się m.in. centrum handlowe M1 Marki z wieloma popularnymi sklepami, punktami usługowymi i lokalami gastronomicznymi, a także IKEA, Makro czy Decathlon. Przestrzeń, która oferuje swobodę Osiedle Skrzetuskiego II to nie tylko atrakcyjna lokalizacja, ale także nowoczesny projekt, który odpowiada na potrzeby wymagających klientów. Inwestycja obejmuje 12 segmentów o powierzchniach od 118 do 130 m². Na parterze mieści się przestronny salon z kuchnią, garderoba, wiatrołapem oraz WC. Piętro to cztery duże pokoje oraz łazienka. Część segmentów posiada dostęp do prywatnego tarasu na dachu. Wnętrza są łatwe w aranżacji – zapewnią wszystkim domownikom doskonałe warunki do odpoczynku, zabawy, spotkań, nauki i pracy. Wymarzony własny ogród Do każdego domu przynależy ogrodzony, indywidualny ogródek, do którego wychodzi się z salonu. To przestrzeń idealna do odpoczynku na świeżym powietrzu, zabaw z dziećmi, spotkań z bliskimi czy pielęgnacji ulubionych kwiatów. Budynki zostały wykonane z wysokiej jakości materiałów oraz przy wykorzystaniu nowoczesnych technologii. W projektach zastosowano ogrzewanie podłogowe oraz duże okna, dzięki którym do wnętrz, bez względu na porę dnia, wpada mnóstwo naturalnego światła. Domy posiadają również prywatny garaż, dzięki któremu nie ma żadnych problemów z parkowaniem samochodu. Przestronne, wysokie wnętrza, praktyczne udogodnienia oraz gwarantująca codzienny komfort lokalizacja sprawiają, że Osiedle Skrzetuskiego II to doskonałe miejsce dla młodych par i rodzin z dziećmi.
Dostępne domy w tej inwestycji
| Nazwa | Rzut | Pokoje | Powierzchnia | Piętra | Cena | Status |