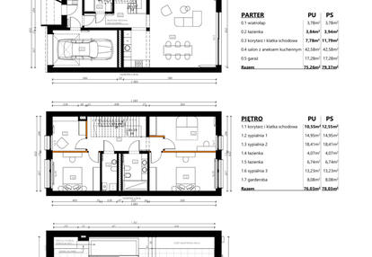
Nowy dom na sprzedaż 5 pokoi Poznań Grunwald, 157,40 m2 - nr B5a
Oferta sprzedaży od WFH S Sp. z o.o.
Poznań, Grunwald, Ławica, ul. H Modrzejewskiej (6,1km od centrum Poznania)

Główne cechy domu
Ważne informacje
Dom i działka
Dodatkowe informacje
Przyroda

Las
Inwestycja
Sceneria
wielkopolskie, Poznań, Grunwald, Ławica
Premiera nowych domów na os. Bajkowym w zabudowie szeregowej! Zapoznaj się z projektem domów w kameralnej inwestycji Sceneria, która powstanie przy ul. H. Modrzejewskiej w Poznaniu w otulinie Lasku Marcelińskiego. W I etapie proponujemy: - 4 budynki, 8 lokali - budynki są dwulokalowe w zabudowie szeregowej - powierzchnia lokali od 157 m2 do 177 m2 - każdy lokal posiada garaż, dodatkowe miejsce postojowe przed budynkiem oraz taras na dachu - do każdego domu przynależy ogród od 98 m2 do 295 m2 - całości dopełnia kilkudziesięciometrowy taras na dachu Cena: 11 750 zł brutto/m2 Oferta bezpośrednio od Dewelopera, bez podatku PCC! Cena obejmuje wysoki standard deweloperski m.in. z roletami zewnętrznymi, ogrzewaniem podłogowym w łazienkach czy klimatyzacją. Termin realizacji: III kwartał 2025 roku Już dziś umów się na spotkanie na terenie inwestycji Sceneria. Zapraszamy do kontaktu z Biurem Sprzedaży
Dostępne domy w tej inwestycji
| Nazwa | Rzut | Pokoje | Powierzchnia | Piętra | Cena | Status |