Dom na sprzedaż 5 pokoi Sulejówek, 156 m2, działka 260 m2
Oferta sprzedaży od Wilson's Nieruchomości
Sulejówek
1 699 999 zł
10 897 zł/m2

Główne cechy domu
Opis nieruchomości o powierzchni 156 m2
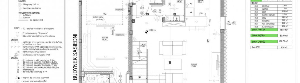
5 pokojowy bliźniak - sulejówek
Bliźniak o powierzchni 165m2 + poddasze 60m2 użytkowe.
Parter:
- Salon z kuchnią (możliwość aranżacji jako aneks lub oddzielne pomieszczenie)
- łazienka
- garaż
- kotłownia
Piętro:
- 4 lub 5 sypialni (w zależności od preferencji),
- łazienka.
Wyposażenie:
- Doskonała izolacja termiczna - trzyszybowe okna, 20 cm szarego styropianu.
- Ogrzewanie podłogowe z nowoczesną pompą ciepła.
Media:
- Prąd
- Wodociąg
- Kanalizacja
- Możliwość podłączenia gazu
- Dostęp do światłowodu.
Lokalizacja:
- Spokojne osiedle w bocznej, ślepej uliczce wewnętrznej (odchodzącej od ul. Drobiarskiej).
- Cicha i spokojna okolica.
Zachęcamy do kontaktu w razie pytań lub zainteresowania. To doskonała okazja, aby zamieszkać w nowoczesnym, przyjaznym otoczeniu.
Wirtualny spacer
