Nowy dom na sprzedaż 5 pokoi Warszawa Białołęka, 123,02 m2 - nr 5C
Oferta sprzedaży od MH Construction
Warszawa, Białołęka, Brzeziny, ul. Białołęcka 327 (10,3km od centrum Warszawy)

Główne cechy domu
Ważne informacje
Dom i działka
Inwestycja
Białołęcka 327
mazowieckie, Warszawa, Białołęka, Brzeziny
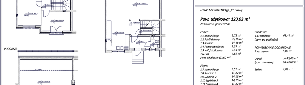
BIAŁOŁĘCKA 327 to kameralne osiedle mieszkań oraz segmentów bezczynszowych. Mieszkanie na parterze 89m2 z ogródkiem do 253m2, mieszkanie na piętrze 104m2 z poddaszem 83m2 oraz segment środkowy 123m2 z ogródkiem do 53m2 i poddaszem 63m2 oraz segment skrajny 123m2 z ogródkiem do 169m2 i poddaszem 53m2. Oddzielne wejście, brak klatki schodowej. Wysokość 280 cm. Wysokie właściwości energetyczne oraz bardzo dobre izolacje przekładają się na niskie koszty ogrzewania. Możliwość dokonywania zmian lokatorskich na etapie budowy – ściany działowe, instalacje elektryczne, hydrauliczne w tym instalacja ogrzewania podłogowego, aranżacja poddasza. Dedykowany przedstawiciel dewelopera ds. zmian lokatorskich. Inwestycja w trakcie realizacji. Zakończenie prac budowlanych marzec 2027r. Możliwość kupienia do 2 miejsc parkingowych przed budynkiem. Miejsce parkingowe w cenie 8 000 zł. Istnieje możliwość postawienia wiaty parkingowej. Mieszkanie 89,29m2, parter, ogród 145m2 – 253m2, salon + 3 sypialnie; 11 500 – 13 000 zł/m2 Mieszkanie 104,64m2, piętro, salon + 3 sypialnie, dodatkowo poddasze 83m2 po podłodze (61m2 przy wysokości 220 cm i wyżej); 10 500 – 11 150 zł/m2 Segment środkowy 123,02m2, salon + 4 sypialnie, dodatkowo poddasze 63m2 po podłodze (51m2 przy wysokości 220 cm i więcej); ogród 45 m2 – 53m2; 9900 – 10 150 zł/m2 Segment skrajny 123,02m2, salon + 4 sypialnie, dodatkowo poddasze 53,5m2 po podłodze (38m2 przy wysokości 220 cm i więcej); ogród 126 m2 – 169 m2; 10 500 – 11 150 zł/m2 Sąsiedztwo: Bezpośrednio przy wjeździe na osiedle Białołęcka 327 przystanek autobusowy 104, 314, 332, N10. Na ul. Płochocińskiej 326, 705, 735, 736. Przedszkola / żłobki: Promyczek 1,1km, Konradek 1,4km, Plastusiowe 1,5km, Malinowe 1,7km, Krecik 2,1km, Cypisek 2,5km. Szkoła Podstawowa: nr 231 600m2, nr 368 900m, nr 112 3km, nr 361 4,3km. Liceum: Lumanai 1,4km, nr CLXV 1,7km, CXL 4,2km, MGM 5,4km. Centra handlowe: Factory Annopol 3km, CH Targówek 3,7km, Marywilska 44 4,6km, Ikea 5,3km. Szczegóły techniczne : - technologia tradycyjna z pustaków ceramicznych Porotherm 25 - ocieplenie styropianem grafitowym o podwyższonych właściwościach cieplnych gr. 15 cm, pokryte tynkiem silikonowym (możliwość mycia myjką ciśnieniową) - dach kryty blachodachówką w kolorze odcienie szarości (ocieplenie wełną mineralną 18 cm + folia paroizolacyjna) - strop nad parterem i piętrem żelbetowy typu Teriva - okna PCV w okleinie odcienie szarości od strony zewnętrznej (białe od strony wewnętrznej), 5 komorowe; bez parapetów wewnętrznych W standardzie developerskim mieszkania posiadają : - rozprowadzone instalacje (elektryczna, wodno-kanalizacyjna, gazową, centralnego ogrzewania, alarmowa, telewizyjna – światłowód we współpracy z firmą SKYNET, domofonowa – domofon z możliwością otwierania bramy wjazdowej na osiedle) - w każdym mieszkaniu (segmencie) w łazience (kotłowni) piec gazowy dwufunkcyjny (ogrzewa mieszkanie i podgrzewa wodę) z zamkniętą komorą spalania (możliwość zabudowania szafą łazienkową, salon, kuchnia, łazienka, hall ogrzewanie podłogowe, grzejniki płytowe typu PURMO w sypialniach. Do pieca przygotowane okablowanie pod sterownik temperatury. - tynki gipsowe maszynowe kat III, wylewki betonowe pod ułożenie podłogi.
Dostępne domy w tej inwestycji
| Nazwa | Rzut | Pokoje | Powierzchnia | Piętra | Cena | Status |