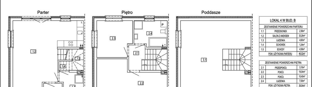
Nowy dom na sprzedaż 4 pokoje Warszawa Białołęka, 126,19 m2 - nr B4
Oferta sprzedaży od Platforma Mieszkaniowa
Warszawa, Białołęka, Choszczówka, ul. Dębowa 4 (15,1km od centrum Warszawy)

Główne cechy domu
Ważne informacje
Dom i działka
Dodatkowe informacje
Przyroda

Las
Inwestycja
Dostępne domy w tej inwestycji
| Nazwa | Rzut | Pokoje | Powierzchnia | Piętra | Cena | Status |