Nowy dom na sprzedaż 3 pokoje Warszawa Wilanów, 72,53 m2, działka 115,97 m2 - nr 8
Oferta sprzedaży od Novisa Development Sp. z o.o.
Warszawa, Wilanów, Kępa Zawadowska, ul. Gratyny (12,5km od centrum Warszawy)

Główne cechy domu
Ważne informacje
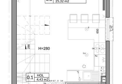
Dom i działka
Dodatkowe informacje
Przyroda

Park
Inwestycja
Slow Wilanów
mazowieckie, Warszawa, Wilanów, Kępa Zawadowska
Slow Wilanów to kameralne osiedle w zielonej części Wilanowa, zaprojektowane z myślą o harmonijnym i komfortowym życiu. Składa się z 14 budynków, z których każdy oferuje dwa narożne lokale o powierzchniach od 72 do 100 m². Do każdego z nich przynależy prywatny ogród, o wielkości od 68 do 236 m², co pozwala na codzienny relaks na świeżym powietrzu w zaciszu własnej przestrzeni. Architektura budynków łączy nowoczesność z elementami tradycyjnego budownictwa, oferując elewacje w klasycznej bieli, wzbogacone akcentami o wzorze cegły. Duże przeszklenia i ponadstandardowa wysokość pomieszczeń zapewniają doskonałe doświetlenie wnętrz, potęgując wrażenie przestronności. Lokalizacja osiedla gwarantuje ciszę i bliskość natury, otoczone eleganckimi willami i domami jednorodzinnymi. Okolica obfituje w parki, lasy i rezerwaty przyrody, co czyni ją idealnym miejscem dla miłośników spacerów, biegania czy jazdy na rowerze. Mieszkańcy mają również dostęp do licznych udogodnień – w pobliżu znajdują się sklepy, restauracje, pizzerie, puby, a także przychodnie, apteki i paczkomaty, dzięki czemu codzienne sprawy można załatwić w ciągu kilku minut. Najbliższe żłobki, przedszkola i szkoły są oddalone o kilka minut jazdy, a dzieci mogą spędzać wolny czas na pobliskich placach zabaw, w salach zabaw czy w centrach kultury. Amatorzy sportu znajdą w okolicy wiele możliwości aktywnego spędzania czasu: od boisk i kortów tenisowych, po pole golfowe i kluby jeździeckie. To doskonała opcja dla tych, którzy chcą utrzymać formę bez rezygnowania z życia w otoczeniu natury. Osiedle Slow Wilanów jest świetnie skomunikowane – zaledwie 4 minuty jazdy dzielą mieszkańców od obwodnicy, a najbliższy przystanek autobusowy znajduje się w odległości krótkiego spaceru. Do centrum miasta można dotrzeć w około 20 minut, co pozwala cieszyć się zarówno spokojem życia na obrzeżach, jak i łatwym dostępem do atrakcji stolicy. To idealne miejsce dla osób, które szukają harmonii, wygody i bliskości natury, nie rezygnując z miejskich udogodnień.
Dostępne domy w tej inwestycji
| Nazwa | Rzut | Pokoje | Powierzchnia | Piętra | Cena | Status |