Nowy dom na sprzedaż 4 pokoje Warszawa Białołęka, 80,54 m2 - nr 35B
Oferta sprzedaży od Novisa Development Sp. z o.o.
Warszawa, Białołęka, Szamocin, ul. Inna (11,4km od centrum Warszawy)

Główne cechy domu
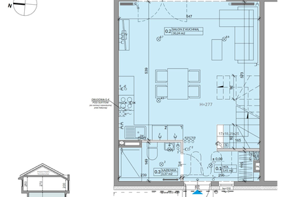
Opis nieruchomości o powierzchni 80,54 m2
Dom w inwestycji: Ogrody Przyjaciół 5 etap III
3 pokoje, duża garderoba i własny, prywatny ogród - ten dom z pewnoscią przypadnie do gustu rodzinie. Na parterze przewidziano strefę dzienną z przestronnym salonem połączonym z aneksem kuchennym oraz hol i toaletę. Piętro domu to strefa prywatna, przeznaczona dla domowników. Mieszczą się tu dwie sypialnie, garderoba, duża łazienka oraz ustawny hol.
Ważne informacje
Dom i działka
Dodatkowe informacje
Przyroda

Las
Inwestycja
Ogrody Przyjaciół 5 etap III
mazowieckie, Warszawa, Białołęka, Szamocin
Zamieszkaj wśród przyjaciół! Tętniące życiem, nowoczesne osiedle wtapiające się w otaczającą je naturę to doskonałe miejsce na to, by nawiązać nowe znajomości, które być może z czasem zaowocują przyjaźnią. Rodzinna atmosfera osiedla, bliskość przyrody i doskonała lokalizacja zapewniająca sprawny dojazd do centrum Warszawy to pewność wygodnego i spokojnego życia dla Ciebie i Twoich bliskich. Marzysz o przytulnym 3-pokojowym domu z kameralnym ogrodem i garderobą, a może o przestronnym 4-pokojowym domu, w którym zorganizujesz nie tylko przestrzeń dla rodziny, ale również do pracy? Nowa odsłona inwestycji Ogrody Przyjaciół daje Ci elastyczny wybór. Powstanie tu 106 domów w zabudowie szeregowej o metrażach od 64 do 82 m2. Do każdego domu przynależeć będzie garaż lub miejsce postojowe oraz prywatny ogród. Metraże ogrodów zaczynają się od 22 m2 i kończą na 127 m2. Od Twojej wyobraźni zależy czy zaaranżujesz tu zaciszny zakątek idealny do czytania książek, czy miejsce, które z ochotą odwiedzać będą przyjaciele domu i sąsiedzi. Skorzystaj z Rodzinnego Kredytu Mieszkaniowego i kup dom w inwestycji Ogrody Przyjaciół 5 z minimalnym wkładem własnym. Jeśli posiadasz zdolność kredytową, brakujący wkład może zostać objęty gwarancją BGK, co znacząco obniża barierę wejścia we własny dom. To rozwiązanie szczególnie korzystne dla rodzin i osób planujących przyszłość – w ramach programu, po narodzinach kolejnego dziecka, możliwa jest spłata części kredytu przez państwo (tzw. spłata rodzinna), która może sięgnąć nawet 60 000 zł. To realne wsparcie, które przekłada się na niższe koszty finansowania i większe poczucie bezpieczeństwa. W połączeniu z atrakcyjną ceną domów w Warszawie, funkcjonalnymi układami 3–4-pokojowymi oraz lokalizacją sprzyjającą codziennemu życiu, program RKM sprawia, że zakup nieruchomości w Ogrodach Przyjaciół 5 jest dziś znacznie łatwiejszy, niż mogłoby się wydawać. Chcesz sprawdzić, jak to wygląda w praktyce przy konkretnym domu? Zostaw kontakt – oddzwonimy i przeprowadzimy Cię przez cały proces krok po kroku.
Dostępne domy w tej inwestycji
| Nazwa | Rzut | Pokoje | Powierzchnia | Piętra | Cena | Status |