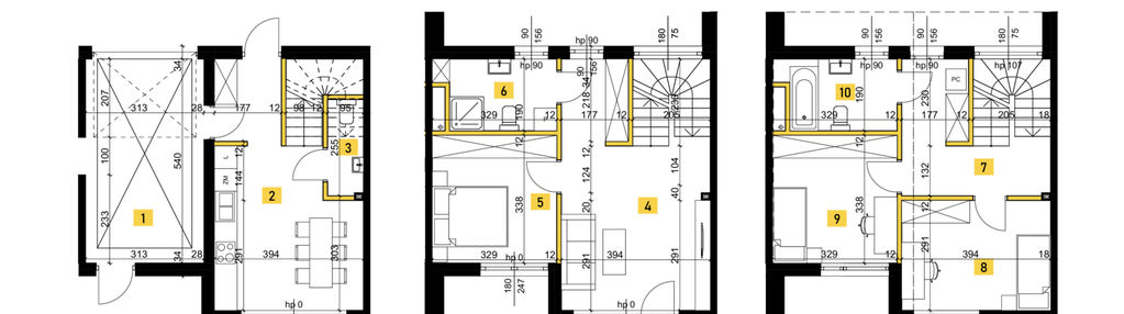
Nowe dom na sprzedaż 4 pokoje Warszawa Ursynów, 92,41 m2, działka 132,72 m2 - nr 7
Oferta sprzedaży od DWE Group
Warszawa, Ursynów, Dąbrówka, ul. Kuropatwy 32 (13,8km od centrum Warszawy)


Główne cechy domu
Opis nieruchomości o powierzchni 92,41 m2
Dom w inwestycji: Kuropatwy 32
Do lokalu mieszkalnego przynależą dodatkowo płatne prawa do wyłącznego korzystania z:
garażu w bryle budynku w cenie: 80 000 zł
miejsca postojowego naziemnego z przedogrodem w cenie: 67 130 zł
ogród o powierzchni 42,59 m2 w cenie 1500 zł/m2 co stanowi 63 885 zł
Ważne informacje
Dom i działka
Dodatkowe informacje
Udogodnienia

Inteligentny dom
Przyroda

Park

Las

Rezerwat przyrody
Inwestycja

Kuropatwy 32
mazowieckie, Warszawa, Ursynów, Dąbrówka
PREMIERA inwestycji! 8 nowoczesnych mieszkań na Ursynowie w pobliżu Lasu Kabackiego OPIS NIERUCHOMOŚCI: Zapraszamy do zapoznania się z inwestycją Kuropatwy 32 – kameralną enklawą ośmiu nowoczesnych mieszkań, zlokalizowaną przy ul. Kuropatwy 32 na warszawskim Ursynowie. To miejsce łączy nowoczesną elegancję z bliskością natury, oferując harmonijne połączenie komfortowego życia w mieście z atutami zielonego otoczenia Lasu Kabackiego. Mieszkania o powierzchni od 100 do 130 m² zostały zaprojektowane z wyjątkową dbałością o funkcjonalność i estetykę. Charakteryzują się nowoczesną, jasną bryłą w stonowanej kolorystyce, z subtelnymi akcentami drewna i szarości. Duże przeszklenia zapewniają doskonałe doświetlenie wnętrz i optyczne powiększenie przestrzeni, otwierając mieszkania na ogród i otoczenie. Każde mieszkanie posiada trzy kondygnacje, garaż jednostanowiskowy, dodatkowe miejsce postojowe zewnętrzne, prywatny ogród oraz taras. NOWOCZESNE I EKOLOGICZNE ROZWIĄZANIA: Mieszkania w Kuropatwy 32 są energooszczędne, przyjazne środowisku i będą wspierać zdrowie Twoje i Twoich bliskich. Mieszkania są wyposażone w pompę ciepła, ogrzewanie podłogowe w całym budynku, rekuperację zapewniającą zdrową jakość powietrza i minimalne straty ciepła, instalację przygotowaną pod fotowoltaikę, system smart home do zarządzania ogrzewaniem i wideodomofonem. Nowoczesne technologie wpływają nie tylko na komfort mieszkańców, ale również na znaczną redukcję kosztów eksploatacji i emisji CO₂. LOKALIZACJA I OTOCZENIE: Inwestycja Kuropatwy 32 zlokalizowana jest w prestiżowej części Ursynowa, zaledwie 200 metrów od ulicy Puławskiej. To miejsce łączy wygodę miejskiego życia z bliskością natury. Komunikacja: 8 minut spacerem do przystanku autobusowego (linie 709, 727, 739, N83, N86) – szybki dojazd do Metra Wilanowska i Piaseczna. Bliskość trasy S2 i obwodnicy Warszawy umożliwia sprawną komunikację samochodową. Bus pas na Puławskiej usprawnia dojazd do centrum samochodom elektrycznym. Okolica: Cicha, kameralna przestrzeń z niską zabudową jednorodzinną, pełna zieleni. Wjazd na osiedle odbywa się przez bramę z kontrolą dostępu, co gwarantuje bezpieczeństwo i prywatność mieszkańców. Udogodnienia w pobliżu: Liczne renomowane placówki edukacyjne – najlepsze szkoły podstawowe w kraju: Szkoła Podstawowa nr 47 im. Roberta Schumana, Szkoła Podstawowa nr 6 Sióstr Niepokalanek). W okolicy znajdują się również sklepy osiedlowe, supermarkety, apteki i placówki medyczne. Rekreacja: Bezpośrednia bliskość Lasu Kabackiego, parków, ścieżek rowerowych, placów zabaw, a także kompleksu sportowego w Powsinie z kortami tenisowymi, basenem i stadniną koni – idealne warunki do aktywnego wypoczynku. Rozwój infrastruktury: Planowana rewitalizacja ulicy Kuropatwy obejmuje nowe, szerokie chodniki oraz bezpieczne ścieżki rowerowe. KUROPATWY 32 – TWÓJ NOWY DOM To idealna propozycja dla osób i rodzin szukających balansu między miejskim rytmem a spokojem natury. Kuropatwy 32 to inwestycja dla tych, którzy cenią jakość, wygodę, bezpieczeństwo i nowoczesne technologie – w otoczeniu zieleni, ale blisko wszystkiego, co niezbędne na co dzień.
Dostępne mieszkania w tej inwestycji
Nazwa | Rzut | Pokoje | Powierzchnia | Piętro | Cena | Status |